Pontault-Combault — 50 Pré des Aulnes
50, rue du Pré des Aulnes - 77340 Pontault-CombaultÀ louer : 1 lot d'activités avec bureaux d'accompagnement, disponible immédiatement
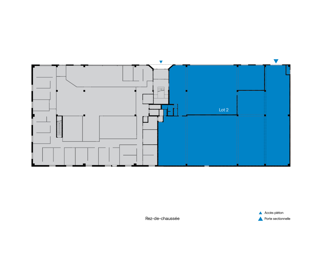
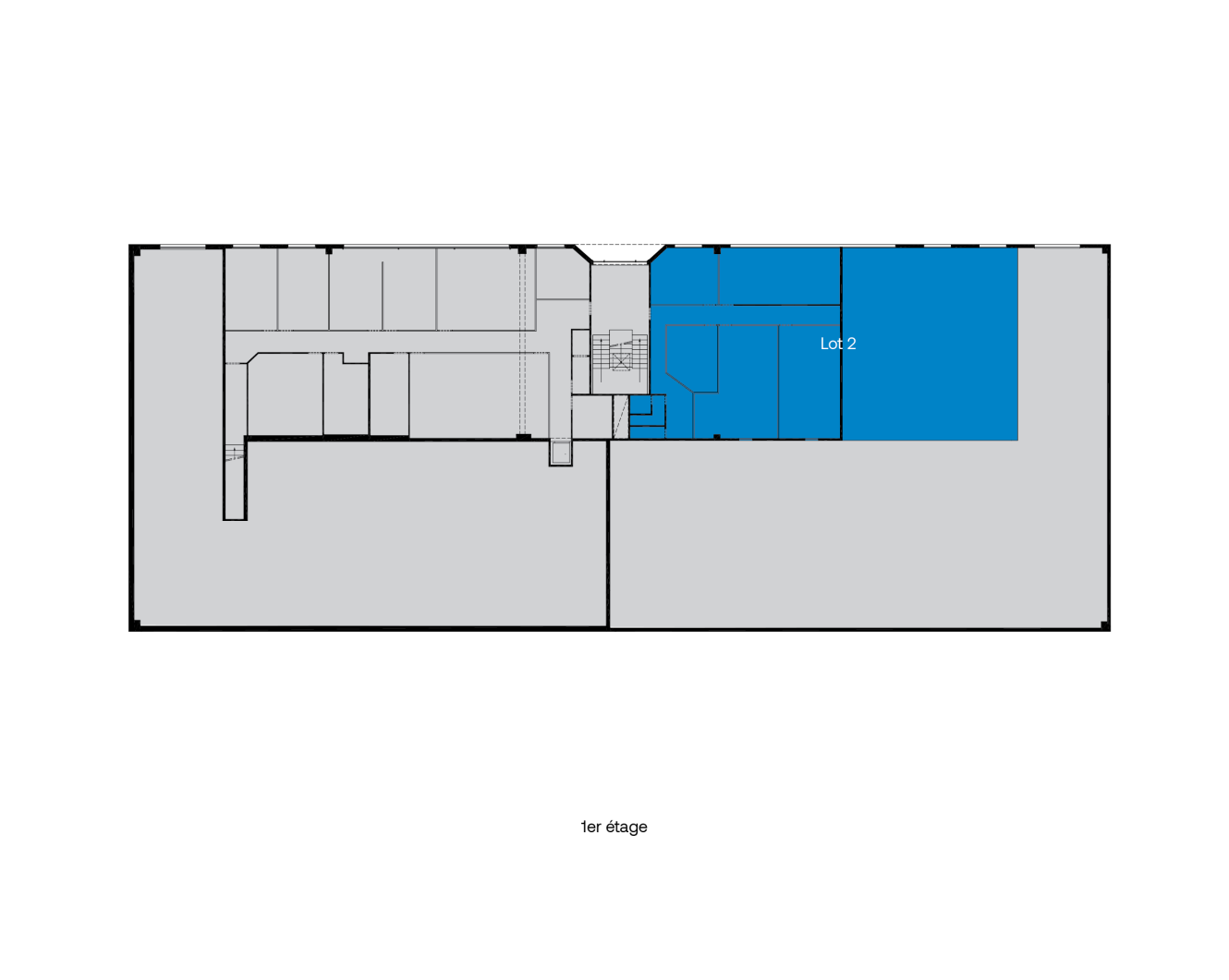
980 m²
Bâtiment indépendant, situé sur un site clos et sécurisé avec un portail électrique, met à disposition un lot d’activité équipé en éclairage LED. Il dispose d’une porte sectionnelle et offre une hauteur libre de 6 mètres. De plus, 20 places de stationnement extérieures sont disponibles.
Site clos et sécurisé
Portail électrique
Porte sectionnelle
HSP : 6 m
LED
Parking
Localisation
Code postal: 77340
À 30 minutes de Paris via la A4, le site possède une excellente visibilité depuis la Francilienne N104 et la départementale D361. Il est également accessible par le bus A et est à 8 minutes en voiture des gares : Emerainville – Pontault-Combault (RER E) et Lognes (RER A).
- A 42 km
- Aéroport de Paris-Orly13 km
- Émerainville Pontault-Combault0.6 km
- Pré des Aulnes0.1 km
- TotalEnergies0.3 km
- Cafet Sasie Center0.03 km
- Centre commercial des Près Saint-Martin/Pontault 20000.9 km
Les distances indiquées sont calculées à vol d’oiseau.
Lots disponibles
Dernière actualisation : novembre 2025
| Lot n° | Typologie | Surface totale (m²) | Loyer HT/HC (€/m²) | Charges (€/m²) | Taxes (€/m²) | Commentaires |
| Lot 2 | Typologie:Activités & bureaux | Surface totale (m²):980 | Loyer HT/HC (€/m²):- | Charges (€/m²):- | Taxes (€/m²):- | Commentaires:Dont 182 m² de bureaux Contacter l'asset manager pour toute demande de visite |
DPE en cours
Pourquoi choisir Mileway ?
Un Asset Manager dedié
Des options de location flexibles
Un portefeuille d’actifs variés et diversifiés
Un service pesonnalisé
Des espaces entretenus et sécurisés
Orienté vers le développement durable








