Mileway | Parks Aulnay Mardelles
Parc des Mardelles - 44, rue Maurice de Broglie - 93600 Aulnay-sous-BoisÀ louer : 7 lots d'activités et 3 lots de bureaux, disponibles immédiatement
95-942 m²
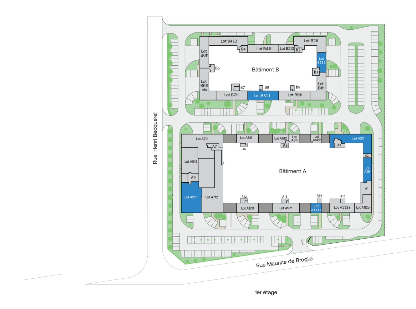
Le Mileway | Parks Aulnay Mardelles se compose de deux bâtiments (A et B) à usage mixte d’activités et de bureaux, divisé en 68 lots et totalisant une surface de 16 293 m². Le site est clos et sécurisé par un portail électrique et par vidéo surveillance.
Les cellules d’activités bénéficient d’une porte sectionnelle ainsi que d’une hauteur sous poutre de 7 mètres, ce qui offre une large possibilité d’aménagements.
Aulnay-sous-Bois
Vidéo-surveillance et gardiennage
Portail électrique
Portes sectionnelles
HSP : 7 m
Parking
Localisation
Code postal: 93600
Situé à Aulnay-sous-Bois, l’actif bénéficie d’une excellente liaison grâce à sa liaison aux grands axes routiers (A3/A1/N2) reliant plusieurs points de la capitale (15 min via l’A1). Le site est également à proximité immédiate de Garonor, pôle économique de référence du nord de l’Ile-de-France. Plusieurs lignes de bus desservent la zone.
- A 3 (6)0.2 km
- Aéroport de Paris-Charles-de-Gaulle5 km
- Port de Saint-Denis6 km
- Le Blanc-Mesnil1 km
- Alfred Nobel0.1 km
- Supermarché Diagonal0.2 km
- KFC0.4 km
- O'Parinor0.8 km
Les distances indiquées sont calculées à vol d’oiseau.
Lots disponibles
Dernière actualisation : février 2026
| Lot n° | Typologie | Surface totale (m²) | Loyer HT/HC (€/m²) | Charges (€/m²) | Taxes (€/m²) | Commentaires |
| Lot B112 Bâtiment B | Typologie:Bureaux | Surface totale (m²):95 | Loyer HT/HC (€/m²):115 | Charges (€/m²) :40,5 | Taxes (€/m²):Taxe foncière : 16,4 Autres taxes : 3,3 | Commentaires:Accès Hall B2 Contacter l'asset manager pour toute demande de visite |
| Lot A111 Bâtiment A | Typologie:Bureaux | Surface totale (m²):118 | Loyer HT/HC (€/m²):118 | Charges (€/m²) :23,7 | Taxes (€/m²):Taxe foncière : 16,4 Autres taxes : 5,9 | Commentaires:Accès Hall 1 Lot rénové et climatisé |
| Lot A911 Bâtiment A | Typologie:Bureaux | Surface totale (m²):322 | Loyer HT/HC (€/m²):100 | Charges (€/m²) :45,4 | Taxes (€/m²):Taxe foncière : 16,4 Autres taxes : 5,9 | Commentaires:Accès Hall 9 Code d'accès à demander à l'asset manager |
| Lot B201 Bâtiment B | Typologie:Activités & bureaux | Surface totale (m²):254 | Loyer HT/HC (€/m²):118 | Charges (€/m²) :40,5 | Taxes (€/m²):Taxe foncière : 16,4 Autres taxes : 3,3 | Commentaires:Dont 108 m² de bureaux Accès Hall B2 Contacter l'asset manager pour toute demande de visite Disponible en mai 2026 |
| Lot A301 Bâtiment A | Typologie:Activités | Surface totale (m²):358 | Loyer HT/HC (€/m²):118 | Charges (€/m²) :25,4 | Taxes (€/m²):Taxe foncière : 15,9 Autres taxes : 2,8 | Commentaires:Lot rénové |
| Lot A1401b & A1411 Bâtiment A | Typologie:Activités & bureaux | Surface totale (m²):375 | Loyer HT/HC (€/m²):118 | Charges (€/m²) :25,4 | Taxes (€/m²):Taxe foncière : 15,9 Autres taxes : 2,8 | Commentaires:Dont 59 m² de bureaux au R+1 Accès Hall A14 Cellule à rénover à la sortie du locataire Contacter l'asset manager pour toute demande de visite Disponible en avril 2026 |
| Lot A502 Bâtiment A | Typologie:Activités | Surface totale (m²):498 | Loyer HT/HC (€/m²):118 | Charges (€/m²) :25,4 | Taxes (€/m²):Taxe foncière : 15,9 Autres taxes : 2,8 | Commentaires:Accès hall A5 Contacter l'asset manager pour toute demande de visite Disponible en juillet 2026 |
| Lot A1501a & A101 Bâtiment A | Typologie:Activités & bureaux | Surface totale (m²):633 | Loyer HT/HC (€/m²):118 | Charges (€/m²) :25,4 | Taxes (€/m²):Taxe foncière : 15,9 Autres taxes : 2,8 | Commentaires:Dont 93 m² de bureaux en RDC Accès Hall A15 Cellule à rénover à la sortie du locataire Contacter l'asset manager pour toute demande de visite Disponible en avril 2026 |
| Lot B801 & B811 Bâtiment B | Typologie:Activités & bureaux | Surface totale (m²):679 | Loyer HT/HC (€/m²):118 | Charges (€/m²) :40,5 | Taxes (€/m²):Taxe foncière : 16,4 Autres taxes : 5,9 | Commentaires:Dont 162 m² de bureaux Lot rénové Accès Hall B8 Disponible en avril 2026 |
| Lot A201 & A211 Bâtiment A | Typologie:Activités & bureaux | Surface totale (m²):942 | Loyer HT/HC (€/m²):118 | Charges (€/m²) :23,7 | Taxes (€/m²):Taxe foncière : 15,9 Autres taxes : 2,8 | Commentaires:Dont 292 m² de bureaux en R+1 (climatisation réversible, double vitrage et fibre optique) Lot rénové : activités en RDC (A201 & A301) à fusionner (ouverture possible) - 3 rideaux métalliques de plain-pied / aérothermes gaz Accès par le hall A3 (hall d'entrée privatisé, 3 blocs sanitaires privatifs dont un à l'étage) |
DPE en cours
Pourquoi choisir Mileway ?
Un Asset Manager dedié
Des options de location flexibles
Un portefeuille d’actifs variés et diversifiés
Un service pesonnalisé
Des espaces entretenus et sécurisés
Orienté vers le développement durable
Discutons-en
Pour obtenir plus d’informations sur nos locaux, organiser une visite ou soumettre une demande de renseignements, veuillez remplir ce formulaire. Notre asset manager, Abdou Oulahna, reviendra vers vous.
Vous pouvez aussi appeler le 08 05 54 37 43

























