C.F. Tietgensvej 10
C.F. Tietgensvej 10, 6000 KoldingLagerhal med central placering i Kolding
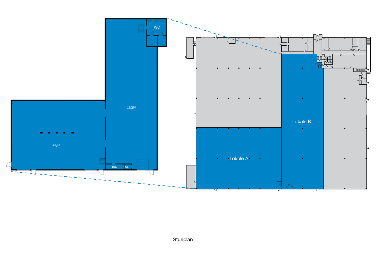
1 786 m²
Logistik- og kontorejendom med ledige lagerlokaler. De største fordele ved ejendommen er den korte vej til motorvejsnettet og offentlig transport samt de gode indkøbsmuligheder i nærheden.
Her udbydes ét regulært lagerlejemål på 1 786 m² med 6 meters loftshøjde og 3 porte i terræn.
Bygningen er opført i 1974 og består af både lager-, logistik- og kontorareal. På grundarealet er der gode parkeringsmuligheder og plads til manøvrering med lastbiler. Ejendommen er indhegnet og har asfalterede udenomsarealer.
Loftshøjde på 6 meter
3 porte i terræn
2,5 km fra motorvejsafkørsel E20 og E45
23 km fra Lillebæltsbroen
Gode parkeringsmuligheder
Oversigt
De ledige enheder er anført nedenfor
| Lokale | m² | Månedlig leje | Månedlige drifts- og varmeudgifter |
| Lokale B - lager | m²:1 786 | Månedlig leje:52.092 kr. | Månedlige drifts- og varmeudgifter:24.557 kr. |
Alle beløb er ekskl. moms
Hvorfor Mileway?
Dedikeret Asset Manager
Fleksible lejemuligheder
Største udvalg af last mile-ejendomme i Europa
Personlig service
Velholdte og sikre lokaler
Fokus på bæredygtighed
Kontakt os
Udfyld denne formular for at lære mere om denne ejendom, arrangere en fremvisning eller lave en generel forespørgsel.
Eller venligst ring til Peter Askestad på +45 22 15 61 46















