Kornmarksvej 2
Kornmarksvej 2, 2605 BrøndbyCentralt beliggende lager og kontor i Brøndby
269-1 002 m²
Kornmarksvej 2 har beliggenhed i Brøndby’s største industriområde med nem og kort adgang til motorvej samt offentlig transport. Placeringen giver nærhed til store befolkningsområder, hvilket fremmer effektivitet og hurtigere leveringstider.
Her udbydes flere ledige lejemål hvoraf det første består af 315 m² fordelt mellem stueplan og første sal. Arealet i stuen udgør 60 m² og kan med fordel anvendes til opbevaring / let lager. På første sal er der kontor samt tilhørende toilet, badefaciliteter og helt nyt tekøkken som udgør 255 m².
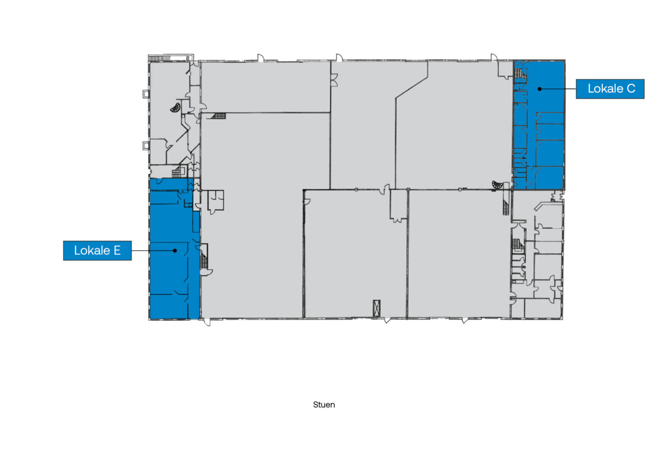
Det andet lejemål er på 418 m² og består af 234 m² kontor beliggende på første sal og 184 m² letlager i stuen (der kan isættes port). Det er indrettet i en rå moderne stil og indeholder ligeledes toilet og badefaciliteter. Herudover, garderobe, to toiletter samt tekøkken. Sidst, er der et ledigt kontor på 269 m² i stuen.
Mulighed for gennemkørsel hele vejen rundt om bygningen
1,8 km fra nærmeste motorvejsafkørsel (21, ring 2, E20 & E47)
Stort udeareal til parkering
Oversigt
De ledige enheder er anført nedenfor
| Lokale | m² | Månedlig leje | Månedlige drifts- og varmeudgifter |
| Lokale A + C - lager og kontor | m²:418 | Månedlig leje:26.996 kr. | Månedlige drifts- og varmeudgifter:7.141 kr. |
| Lokale B - lager og kontor | m²:315 | Månedlig leje:20.344 kr. | Månedlige drifts- og varmeudgifter:5.382 kr. |
| Lokale E - kontor | m²:269 | Månedlig leje:17.373 kr. | Månedlige drifts- og varmeudgifter:4.596 kr. |
Alle beløb er ekskl. moms
Hvorfor Mileway?
Dedikeret Asset Manager
Fleksible lejemuligheder
Største udvalg af last mile-ejendomme i Europa
Personlig service
Velholdte og sikre lokaler
Fokus på bæredygtighed
Kontakt os
Udfyld denne formular for at lære mere om denne ejendom, arrangere en fremvisning eller lave en generel forespørgsel.
Eller venligst ring til Isabella Witthaus på +45 60 15 21 52








































