Kuldyssen 15-17
Kuldyssen 15-17, 2630 TaastrupProduktion/lager/logistik centralt beliggende i Taastrup
415-1 460 m²
Kuldyssen 15-17 har en central beliggenhed i ét af Taastrups ældste og mest attraktive industriområder. Med kun 4 km fra rute 21/04 er det muligt at komme til indre by på en halv times tid. Opført af betonelementer med tagpap og yderst velholdt med både lager-, logistik- og kontorlokaler.
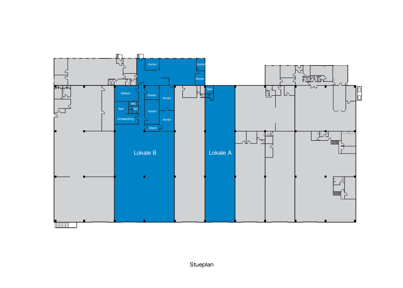
Her er mulighed for at leje et lager på 415 m² med højt til loftet. Der er også mulighed for at leje et erhvervslejemål på 1 045 m² som består af 840 m² lager og 205 m² kontor. Lagerdelen har ligeledes har portadgang og højt til loftet. Kontorarealet har køkkenfaciliteter og spiseområde inkluderet.
Loftshøjde på 4,5 meter i lager
Lager på 415 m² med port i hver ende
4 km fra rute 21/04 hvorfra der kan opnås forbindelse til E20 og E47 på få minutter
Gode parkeringsmuligheder
Oversigt
De ledige enheder er anført nedenfor
| Lokale | m² | Månedlig leje | Månedlige drifts- og varmeudgifter |
| Lokale A - lager | m²:415 | Månedlig leje:25.938 kr. | Månedlige drifts- og varmeudgifter:6.398 kr. |
| Lokale B - lager og kontor | m²:1 045 | Månedlig leje:65.313 kr. | Månedlige drifts- og varmeudgifter:8.679 kr. (ekskl. varme) |
Alle beløb er ekskl. moms
Hvorfor Mileway?
Dedikeret Asset Manager
Fleksible lejemuligheder
Største udvalg af last mile-ejendomme i Europa
Personlig service
Velholdte og sikre lokaler
Fokus på bæredygtighed
Kontakt os
Udfyld denne formular for at lære mere om denne ejendom, arrangere en fremvisning eller lave en generel forespørgsel.
Eller venligst ring til Emil Olsen på +45 89 87 16 18
















