Roskildevej 8-10
Roskildevej 8-10, 2620 AlbertslundAttraktiv erhvervsejendom med fleksible lagerlokaler i Albertslund
219-445 m²
Pæn erhvervsejendom i Albertslunds industriområde med kort vej fra København centrum. Ejendommen har en attraktiv placering med 3,5 km fra nærmeste motorvejsafkørsel og 0,3 km fra offentlig transport.
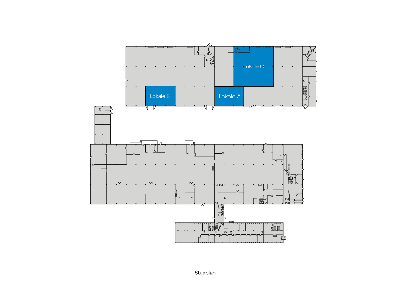
Der er mulighed for at leje to lagerlokaler på hhv. 219 m² og 226 m² hvoraf lageret på 219 m² har adgang via automatisk ledhejseport.
Lejemålene er optimale til webshops eller andre virksomheder som ønsker lagerplads i Storkøbenhavn.
Portadgang
4,5 km fra motorvejsafkørsel E47, 21 og O4
0,3 km fra nærmeste busstoppested (busrute 123)
3,4 km fra Glostrup centrum
Beliggenhed
Postnummer: 2620
Roskildevej 8-10 er beliggende I et veletableret erhvervsområde med fokus på logistik, med en strategisk beliggenhed 15 km fra københavn centrum. Ejendommen er beliggende 4,5 km fra motorvejsafkørsel E47, 21 og O4. Bus 123 afgår fra Herstedøstersvej (0,3 km fra lejemålet), som kører til Roskilde st. og Glostrup st.
Oversigt
De ledige enheder er anført nedenfor
| Lokale | m² | Månedlig leje | Månedlige drifts- og varmeudgifter |
| Lokale A - lager | m²:226 | Månedlig leje:14.125 kr. | Månedlige drifts- og varmeudgifter:5.053 kr. |
| Lokale B - lager | m²:219 | Månedlig leje:13.688 kr. | Månedlige drifts- og varmeudgifter:4.897 kr. |
Alle beløb er ekskl. moms
Hvorfor Mileway?
Dedikeret Asset Manager
Fleksible lejemuligheder
Største udvalg af last mile-ejendomme i Europa
Personlig service
Velholdte og sikre lokaler
Fokus på bæredygtighed
Kontakt os
Udfyld denne formular for at lære mere om denne ejendom, arrangere en fremvisning eller lave en generel forespørgsel.
Eller venligst ring til Christian Pihl på +45 81406423













