Koskelontie 21-25, Koskelo
Koskelontie 21-25, 02920 EspooVuokrattavana liike-, varasto- ja toimistotilaa
160 - 5 501 m²
Espoon Koskelossa sijaitseva Koskelo Trade Park on logistiikkakiinteistö, jonka keskeinen sijainti Kehä III:n välittömässä läheisyydessä takaa nopeat yhteydet kaikille pääväylille. Kiinteistön kaikkiin taloihin on tehty energiaremontti ja B- sekä C-taloissa on aurinkopaneelit.
Kiinteistöstä on mahdollista saada nyt liike-, toimisto- ja varastotilat saman katon alta. Tilat ovat remontoitavissa käyttäjien viihtyvyyden takaamiseksi.
Lastauslaituri
Maantason lastausmahdollisuus
Nopea yhteys Kehä III:lle
Varastotilan korkeus jopa 10 m
Energiatodistus
Alueella lounasravintoloita
Sijainti
Alue: Koskelo
Loistava sijainti Espoon Koskelossa Kehä III:n välittömässä läheisyydessä. Koskelo Trade Parkista on yhteydet kaikille pääväylille sekä Helsinki-Vantaan lentoasemalle ja Vuosaaren satamaan.
- 1 (40)6 km
- Helsinki-Vantaan lentoasema14 km
- Ruoholahden satama15 km
- Kera5 km
- Koskelonkuja0.2 km
- K-Supermarket2 km
- Pizza Hut2 km
- Lähderannan Ostoskeskus2 km
Etäisyydet ovat suoria mittoja postinumeron keskipisteestä.
Vuokrattavat tilat
Vapaat tilat on lueteltu alla
| Tila | m² | Lisätietoja |
| Varasto, A-talo | m²:1 410 | Lisätietoja:Maantaso, 3 * nosto-ovi. Tilan vapaa korkeus on n. 5-6 m. Varastotilan parvella toimistotilaa |
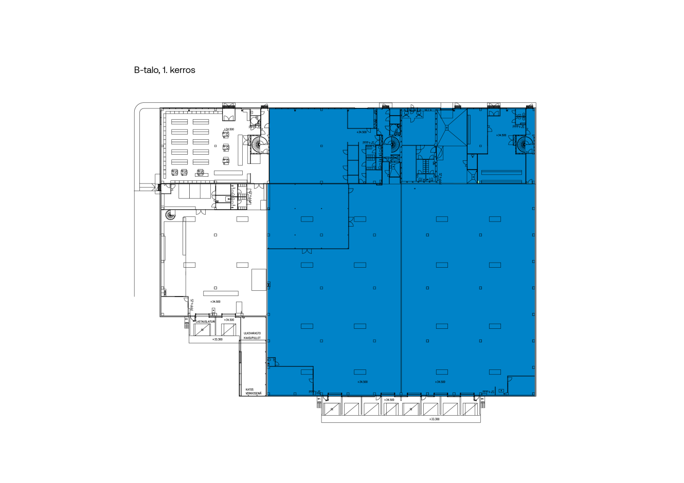
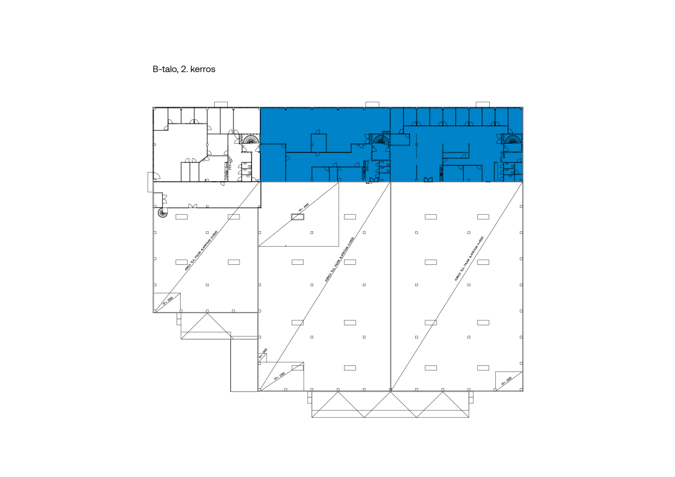
| Varasto & toimisto, B-talo | m²:2 040 | Lisätietoja:B-talo, 2. krs 424 m² edustavaa toimistotilaa ja 1. krs varasto 1 391 m² sekä sosiaalitilat, tilaan myös maantason nosto-ovi sekä toisella puolella lastauslaituri. Voidaan yhdistää alla olevaan tilaan |
| Varasto, C-talo | m²:1 177 | Lisätietoja:Vapaa korkeus 8,9 m (osassa 5,7 m), nosto-ovi (lastauslaituri) |
| Varasto, A-talo | m²:420 | Lisätietoja:Jaettu maantason varasto, jossa nosto-ovi * 3 ja joiden leveys 4,5 m. Tilan vapaa korkeus on n. 5-6 m. Varastotilan parvella toimistotilaa |
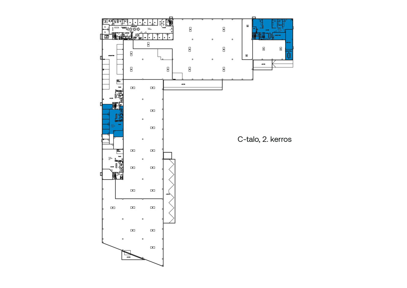
| Toimisto, C-talo | m²:160 | Lisätietoja:2. krs, keittiö, wc, huoneita |
| Toimisto, C-talo | m²:294 | Lisätietoja:2. krs, keittiö, wc, huoneita |
Lisätietoja
Lisätietoja saat lataamalla seuraavat esitteet:
Miksi Mileway?
Omistautunut Asset Manager
Joustavat vuokrasopimusvaihtoehdot
Monipuolinen kiinteistövalikoima Suomessa ja ulkomailla
Yksilöllistä palvelua
Ylläpidetyt ja turvalliset tilat
Painopisteenä kestävä kehitys
Puhumme mielellämme lisää kanssanne
Täytä lomake saadaksesi lisätietoja tietystä kiinteistöstä, sopiaksesi esittelyn tai kysyäksesi yleisen kysymyksen.
Tai soita Asset Managerille Oskar Matero numeroon +358 46 671 7573



































































