Pakkalantie 19, Aviapolis
Pakkalantie 19, 01510 VantaaVuokrattavana varasto- ja toimistotilaa
92 - 4 016 m²
Ainutlaatuisessa logistiikkakiinteistössä, Suomen neljänneksi suurimman kaupungin Vantaan sydämessä ja lentokentän läheisyydessä, vapaana toimisto- ja varastotilaa. Kiinteistö on helposti saavutettavissa Kehä III:lta (E18), josta on myös sujuvat yhteydet kaikille pääteille Helsingin seudulla.
Sijainti Helsinki-Vantaan lentokentän välittömässä läheisyydessä antaa tälle 9 190-neliöiselle teollisuuskiinteistölle uniikin leimansa.
10 km Helsingin keskustasta, 5 min ajomatka lentokentälle
Suora yhteys Kehä III:lle ja siitä muille pääväylille
1 lastauslaituri, 3 lastausovea
Loistava sijainti lentokentän läheisyydessä
Laaja valikoima kauppoja/ravintoloita/muita palveluja
Sijainti
Alue: Virkamies
Pakkalantie 19 sijaitsee Flamingon ja lentokentän välittömässä läheisyydessä, Vantaan sydämessä, Kehä III:n tuntumassa. Juna- ja bussiyhteydet Helsingin keskustaan ja muualle Vantaalle ovat hyvät.
- 45 (7)1 km
- Helsinki-Vantaan lentoasema2 km
- Merikasarmin laituri9 km
- Aviapolis0.6 km
- Virkatie0.1 km
- Lidl0.3 km
- Ravintola Kehä III0.4 km
- Jumbo0.8 km
Etäisyydet ovat suoria mittoja postinumeron keskipisteestä.
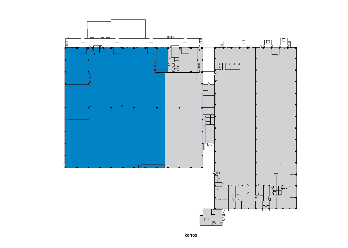
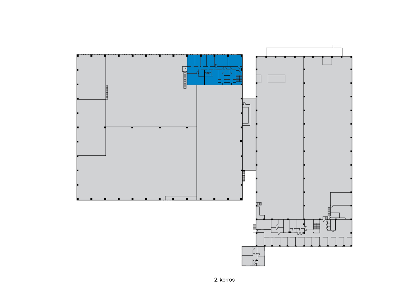
Vuokrattavat tilat
Vapaat tilat on lueteltu alla
| Tila | m² | Lisätietoja |
| Varasto | m²:3 629 | Lisätietoja:Varastotila 3 269,5 m², jonka vapaa korkeus n. 6,5 m, osin matalampaa tilaa sekä n. 242 m² kevytvarasto ja lisäksi 412,5 m² toimistotila. Lastauslaituri, nosto-ovi * 5. Lattiakantavuus 800 kg/m², dynaaminen kuormakestävyys 400 kg/m² |
| Toimisto | m²:295 | Lisätietoja:2. krs, remontoitu toimistotila |
| Toimisto/kevyt varasto | m²:92 | Lisätietoja:Erillinen oma rakennus kiinteistön pihalla, joka osittain toimistoa ja osittain kevyttä varastoa |
Lisätietoja
Lisätietoja saat lataamalla seuraavat esitteet:
Miksi Mileway?
Omistautunut Asset Manager
Joustavat vuokrasopimusvaihtoehdot
Monipuolinen kiinteistövalikoima Suomessa ja ulkomailla
Yksilöllistä palvelua
Ylläpidetyt ja turvalliset tilat
Painopisteenä kestävä kehitys
Puhumme mielellämme lisää kanssanne
Täytä lomake saadaksesi lisätietoja tietystä kiinteistöstä, sopiaksesi esittelyn tai kysyäksesi yleisen kysymyksen.
Tai soita Asset Managerille Karoliina Kakarinen numeroon +358 50 559 0259


























