Kyllager optimalt för dagligvaruhandel och livsmedelshantering direkt vid E6
245-15 100 kvm
Lediga lagerlokaler i Långeberga, precis intill E6, perfekt lämpade för aktörer inom dagligvaruhandel och livsmedelshantering som söker kyllager. Området är Helsingborgs nav för just grönsaks- och livsmedelsdistribution, här finns redan ett starkt kluster av grossister. Det kommer ske en omfattande renovering av fastigheten, här har du som hyresgäst möjlighet att vara med och påverka utformningen helt efter verksamhetens behov.
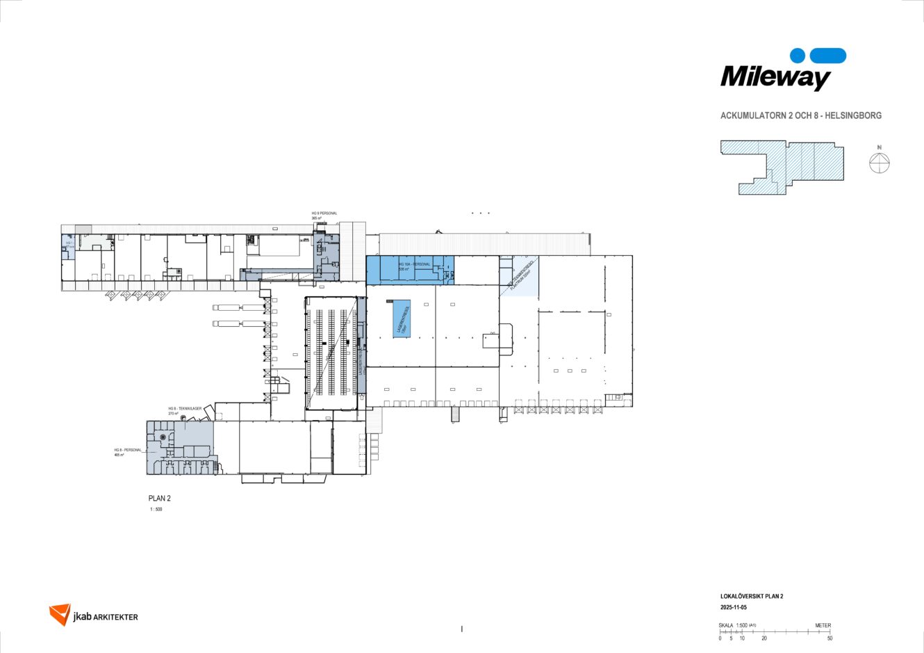
HG 8
Rymlig och flexibel lager- och kontorslokal om totalt 3 535 kvm med möjlighet att anpassa ytorna helt efter era behov. Perfekt för verksamheter som behöver en skräddarsydd lösning med effektiva flöden. Lokalen nås via 5 lasthus för effektiv in- och urlastning. De generösa rangeringsytorna utanför bidrar till smidig logistik och enkel hantering av gods.
HG 9
Lager- och kontorslokal om 4 900 kvm med höglager om 2 000 kvm med 18 meter i takhöjd. Här finns möjlighet till kyllager. Lokalen nås via 6 lasthus (lokalen kan hyras tillsammans med lokal 10A, 10B och 10C).
HG 10A, 10B, 10C
Flexibel planlösning och möjlighet att anpassa ytorna helt efter verksamhetens behov. Möjliga kvm på lokalerna är 3 110 kvm, 2 245 kvm samt 4 845 kvm. Lokalen kan delas upp i enheter från cirka 2 245 kvm, ritningarna är endast exempel på möjliga indelningar. Här har du gott om lasthus – hela 23 stycken och 1 markport vilket skapar smidiga flöden och effektiva transporter. Även här finns möjlighet till kyllager.
Uppställningsytor uppgår till cirka 20 000 kvm samt 40 parkeringsplatser som ligger i anslutning till kontorsdelen.
HG 1, 4, 5 (small units)
Kyllager om 245 – 340 kvm med lastning via gemensam lastkaj med sex lasthus som delas av hyresgästerna. Det finns tillgång till kyla i lokalen, perfekt för grönsakshandlare och andra livsmedelsaktörer. Det finns även tillgång till gemensamma faciliteter i form av pentry och WC.
6 km öster om centrala Helsingborg
Flexibla lagerlokaler med kyla
Upp till 40 lasthus
Takhöjd 6-18 meter
Direkt anslutning till E6
Läge/närmaste ort
Helsingborg
Långeberga är ett mindre industriområde som ligger precis intill E6 cirka 6 kilometer öster om centrala Helsingborg. Området erbjuder optimala etableringsmöjligheter till olika aktörer inom lager och logistik. Närservice med butiker, restaurang och andra tjänster hittas närmast i närliggande Ramlösa. Det finns goda kollektivtrafikförbindelser med buss till centrala Helsingborg.
- E 4;E 6;E 20 (29)2 km
- Københavns Lufthavn49 km
- Helsingør Havn10 km
- Påarp3 km
- Helsingborg Långeberga industriområde0.1 km
- ICA Supermarket Gustavslund2 km
- Forni pizza2 km
- SöDER5 km
Avstånden är beräknade fågelvägen från postkodens mittpunkt.
Översikt
| Lediga enheter | Kvm |
| HG 8 - lager och kontor | Kvm:3 535 |
| HG 9 - lager och kontor | Kvm:4 990 |
| HG 10A - lager och kontor | Kvm:3 110 |
| HG 10B - lager och kontor | Kvm:2 245 |
| HG 10C - lager och kontor | Kvm:4 845 |
| HG 1 - lager och kontor | Kvm:245 |
| HG 4 - lager | Kvm:280 |
| HG 5 - lager | Kvm:340 |
Mer information
Ladda ner våra broschyrer för mer information:
Varför Mileway?
Dedikerad Asset Manager
Flexibla hyresvillkor
Ledande i Sverige & Europa inom last mile-logistikfastigheter
Personlig service
Väl underhållna och säkra lokaler
Fokus på hållbar utveckling
Kontakta oss
Fyll i formuläret för att få mer information, boka en visning eller om du har en generell förfrågan.
Eller ring gärna Ida Friggerdal på +46 (0) 72 375 02 14


































