Handelsgatan 9
Bleckslagaren 1Lediga kontorslokaler med goda möjligheter till anpassning enligt hyresgästens önskemål!
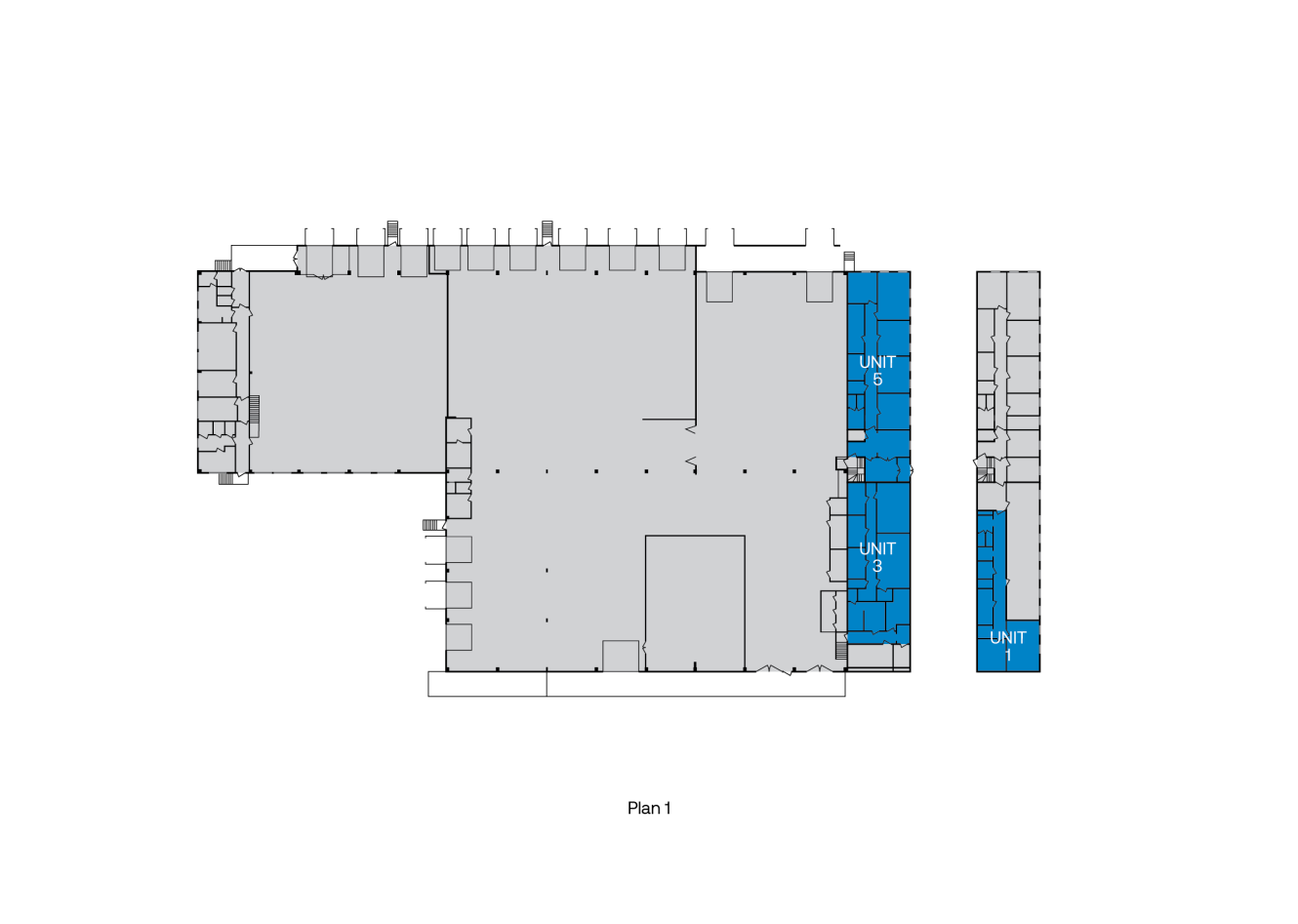
82-348 kvm
Här finns lediga kontorslokaler varierande storlek från 82 till 150 kvadratmeter. Enheterna är belägna på markplan och en trappa upp, de går att hyra separat eller kombineras med en maxyta om 348 kvadratmeter. Lokalerna erbjuder goda möjligheter till anpassning enligt hyregästens önskemål då de är i behov av renovering innan inflyttning. I några av lokalerna finns i dagsläget inget kök/pentry, men det kommer att ordnas i samband med renovering.
Byggnaden ligger på inhägnat område med fri parkering i anslutning till lokalerna.
3 km sydväst om centrala Örebro
Stor utvecklingspotential
Direkt anslutning till E18 och E20
Läge/närmaste ort
Örebro
Bista industriområde är beläget cirka 3 kilometer sydväst om centrala Örebro och ligger på ett bra logistikläge med närhet till E18 och E20. Området präglas av stora logistik- och lagerfastigheter och många stora aktörer såsom DSV, PostNord, Schenker, XXL Logistics och Swedol Logistikcenter finns representerade. Enklare service med lunchservering finns i närområdet och fullt serviceutbud finns inom räckhåll i centrala Örebro. Det finns goda kollektivtrafikförbindelser med buss till centrala Örebro.
- E 18;E 20;50 (111)0.4 km
- Oljehamnen57 km
- Örebro Södra2 km
- Stolpgränd0.7 km
- Coop Haga0.9 km
- Bista restaurang & kolgrill0.4 km
- Haga Centrum1 km
Avstånden är beräknade fågelvägen från postkodens mittpunkt.
Översikt
| Lediga enheter | Kvm |
| Unit 1 - kontor | Kvm:82 |
| Unit 3 - kontor | Kvm:116 |
| Unit 5 - kontor | Kvm:150 |
Varför Mileway?
Dedikerad Asset Manager
Flexibla hyresvillkor
Ledande i Sverige & Europa inom last mile-logistikfastigheter
Personlig service
Väl underhållna och säkra lokaler
Fokus på hållbar utveckling
Kontakta oss
Fyll i formuläret för att få mer information, boka en visning eller om du har en generell förfrågan.
Eller ring gärna Susanne Bermark på +46 (0) 72 375 02 19
















