Flexibla ytor för lager/logistik, industri eller handel på strategiskt läge intill E22 i Kalmar
512-4 182 kvm
Nu finns möjlighet att hyra flexibla och effektiva lokaler med centralt och lättillgängligt läge i Kalmar, med snabb anslutning till E22. Här erbjuds lagerytor om cirka 674 kvm och 2 473 kvm som kan hyras var för sig eller kombineras till en större sammanhängande yta om totalt cirka 3 147 kvm.
Lokalerna lämpar sig väl för verksamheter inom logistik, industri eller handel och kan anpassas efter hyresgästens behov. Lagerytorna har en takhöjd om cirka sex meter, kylrum, upp till åtta lasthus samt goda kontors- och personalutrymmen med pentry, omklädningsrum och WC. I direkt anslutning till lastområdet finns mycket generösa rangerytor som möjliggör smidiga logistikflöden.
Utöver lagerytorna finns kontorsytor på våning två, fördelade på två separata kontorsdelar om cirka 512 kvm respektive 523 kvm, vilka kan hyras tillsammans med lagret eller separat beroende på verksamhetens behov.
3 km väster om centrala Kalmar
8 lasthus
Takhöjd 6 meter
Flera lediga enheter som kan kombineras
Direkt anslutning till E22
Läge/närmaste ort
Kalmar
Dösebacke är ett attraktivt industriområde 3 km väster om centrala Kalmar. Det ligger strategiskt placerat direkt intill E22 med snabb anslutning till motorvägen och närhet till Kalmar Öland Airport. Området präglas av lättindustri, handel samt lager- och logistikverksamhet med ett enklare serviceutbud av butiker och lunchrestauranger. Det finns goda kollektivtrafikförbindelser med buss och tåg till centrala Kalmar.
- E 220.3 km
- Karlshamns Hamn67 km
- Kalmar C2 km
- Fölehagsvägen0.2 km
- Circle K Kalmar Dragonvägen0.2 km
- Burger King0.7 km
- Modehuset0.9 km
Avstånden är beräknade fågelvägen från postkodens mittpunkt.
Översikt
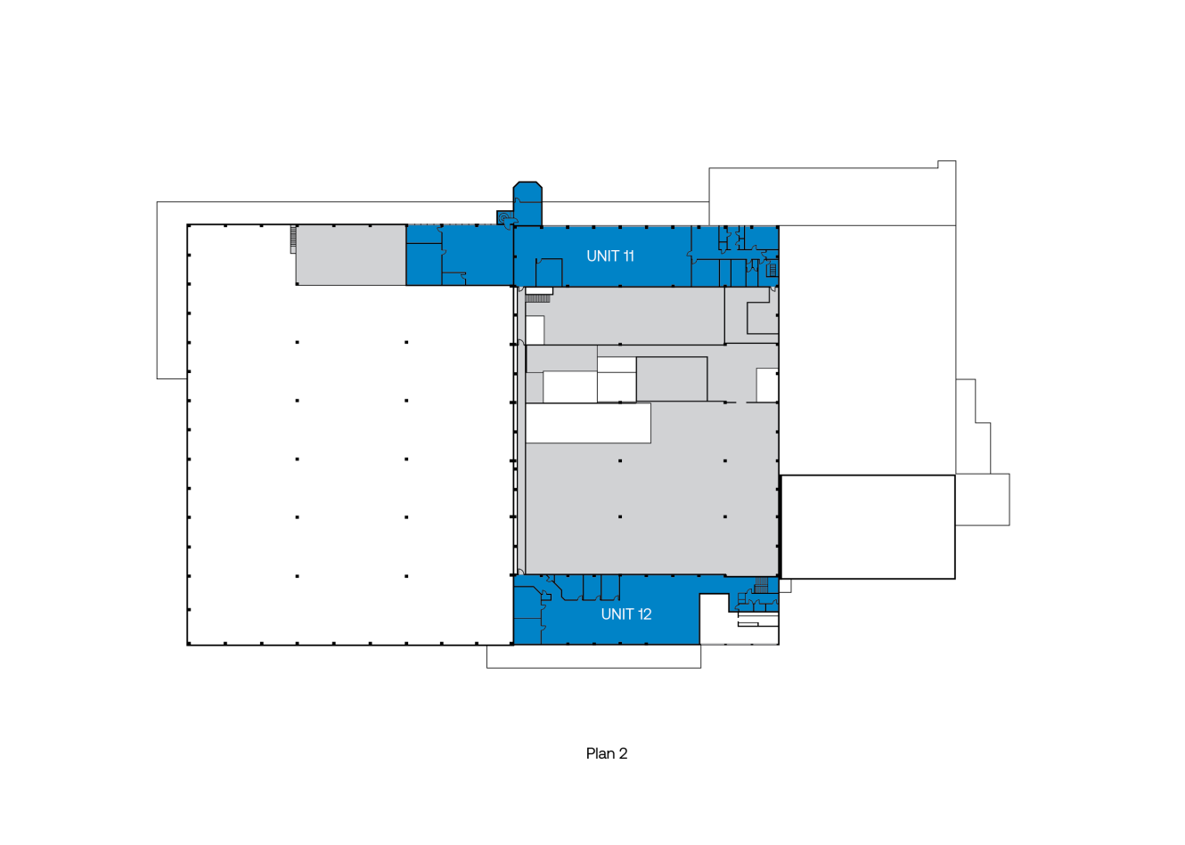
| Lediga enheter | Kvm |
| Unit 2 + 7 - lager/butik och kontor | Kvm:2 473 |
| Unit 9 - lager och kontor | Kvm:674 |
| Unit 11 - kontor | Kvm:523 |
| Unit 12 - kontor | Kvm:512 |
| Total enhet | Kvm:4 182 |
Varför Mileway?
Dedikerad Asset Manager
Flexibla hyresvillkor
Ledande i Sverige & Europa inom last mile-logistikfastigheter
Personlig service
Väl underhållna och säkra lokaler
Fokus på hållbar utveckling
Kontakta oss
Fyll i formuläret för att få mer information, boka en visning eller om du har en generell förfrågan.
Eller ring gärna Jennie Hansen på +46 (0) 76 600 28 58





















