Flexibel lagerfastighet med kontor och höglager i expansiva Pilängen
7 100 kvm
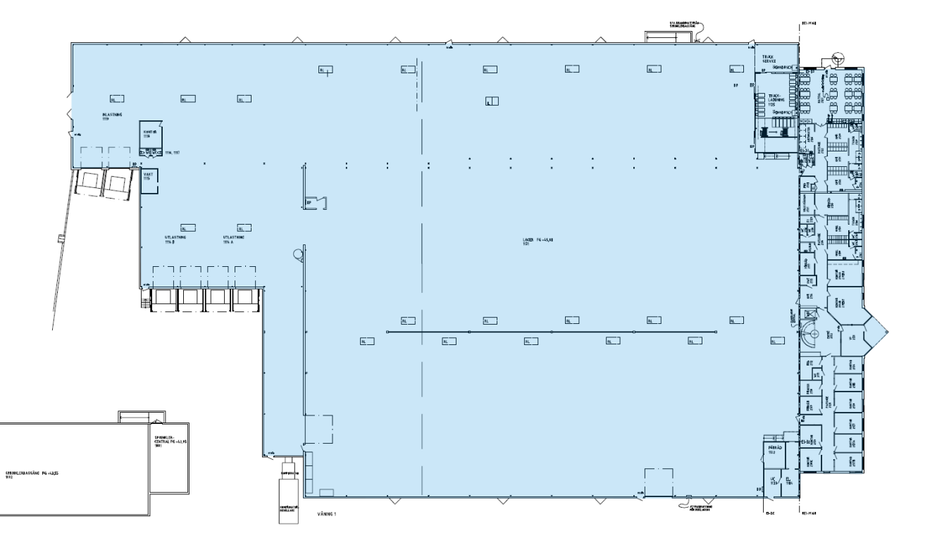
Välkommen till en yteffektiv och flexibel lokal om cirka 7 100 kvm där hyresgästen disponerar en helt egen byggnad med tillhörande tomtyta. Fastigheten erbjuder ett höglager om cirka 5 950 kvm med stora öppna ytor samt cirka 1 150 kvm kontor med flexarbetsplatser, konferensrum och lunchmatsal, vilket skapar utmärkta förutsättningar för logistik, förvaring, produktion och administration.
Den generösa, inhägnade tomten med stora rangerytor och gott om parkeringsplatser möjliggör effektiva flöden, smidig godshantering och hög integritet i den dagliga verksamheten. Byggnaden är utrustad med sex lasthus och två markportar som ger goda lastningsmöjligheter, medan LED-belysning bidrar till en energieffektiv drift. Omklädningsrum, pausytor och WC skapar en funktionell och trivsam arbetsmiljö. Fastighetens flexibla utformning och självständiga läge gör den väl lämpad för såväl kreativa bolag som för verksamheter med behov av långsiktig lagring och administrativa ytor.
3 km väster om centrala Örebro
Takhöjd 7.5 meter
LED-belysning
6 lasthus och 2 markportar
Nära anslutning till E18 och E20
Läge/närmaste ort
Örebro
Fastigheten ligger i industriområdet Pilängen, endast cirka 3 km väster om centrala Örebro. Området erbjuder ett optimalt logistiskt läge med direkt närhet till E18 och E20, vilket ger smidig tillgång till både regionala och nationella transportvägar. I närområdet finns flera större lageretableringar, vilket gör Pilängen till en attraktiv plats för logistikintensiva verksamheter.
Busshållplats finns i närheten, vilket gör området lättillgängligt även för medarbetare och besökare.
- E 20;50 (110a)0.6 km
- Oljehamnen91 km
- Örebro Södra4 km
- Terminalgatan0.6 km
- ICA Parken2 km
- Tant Norra0.9 km
- Mariebergs Köpcenter3 km
Avstånden är beräknade fågelvägen från postkodens mittpunkt.
Översikt
| Ledig enhet | Kvm |
| Hel fastighet | Kvm:7 100 |
Varför Mileway?
Dedikerad Asset Manager
Flexibla hyresvillkor
Ledande i Sverige & Europa inom last mile-logistikfastigheter
Personlig service
Väl underhållna och säkra lokaler
Fokus på hållbar utveckling
Kontakta oss
Fyll i formuläret för att få mer information, boka en visning eller om du har en generell förfrågan.
Eller ring gärna Susanne Bermark på +46 (0) 72 375 02 19




















