Lediga butiks- och lagerlokaler med bästa skyltläge längs med Laholmsvägen
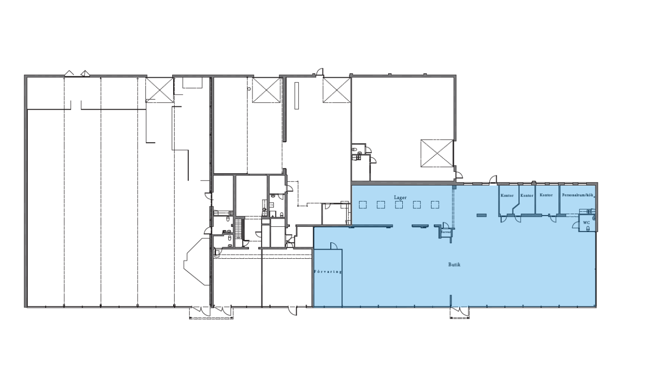
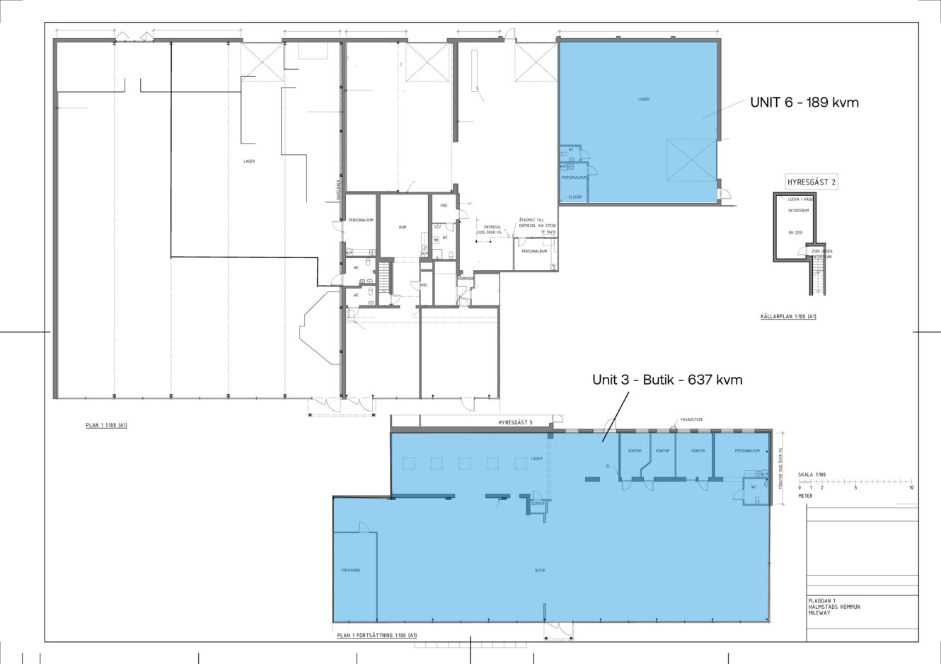
637 kvm
Nu finns möjlighet att hyra en ljus och flexibel butikslokal om ca 637 kvm med mycket bra exponering mot Laholmsvägen, en av Halmstads mest trafikerade infartsleder. Lokalen erbjuder stora skyltfönster som ger god synlighet och ett generöst ljusinsläpp, samt en takhöjd om ca 4 meter som skapar en öppen och inbjudande miljö.
Ytorna kan anpassas efter verksamhetens behov och passar för exempelvis butik, showroom eller annan kundnära verksamhet. I lokalen finns även personalutrymmen såsom kontor, pentry och WC. I direkt anslutning finns goda parkeringsmöjligheter för både kunder och personal.
3 km söder om centrala Halmstad
Butikslokal med utmärkt skyltläge och stora skyltfönster
Lagerlokaler med egen markport
Kombinerad kontors- och lagerlokal i modern skick
Direkt anslutning till E6/E20 och riksväg 15/25/26
Läge/närmaste ort
Halmstad
Industriområdet Larsfrid ligger endast 3 km söder om centrala Halmstad och utgör ett optimalt logistikläge i direkt anslutning till E6/E20, nära Halmstad hamn samt vid knutpunkten för riksväg 15, 25 och 26. Högskoleområdet erbjuder ett brett serviceutbud av butiker och restauranger. Det finns goda kollektivtrafikförbindelser med buss till centrala Halmstad.
- E 6;E 20 (43)0.7 km
- Helsingør Havn45 km
- Halmstad C1 km
- Grönevångsvägen0.1 km
- Simmo0.2 km
- Orient's grill0.1 km
- Hallarna0.9 km
Avstånden är beräknade fågelvägen från postkodens mittpunkt.
Översikt
| Lediga enheter | Kvm |
| Unit 3 - butik | Kvm:637 |
Varför Mileway?
Dedikerad Asset Manager
Flexibla hyresvillkor
Ledande i Sverige & Europa inom last mile-logistikfastigheter
Personlig service
Väl underhållna och säkra lokaler
Fokus på hållbar utveckling
Kontakta oss
Fyll i formuläret för att få mer information, boka en visning eller om du har en generell förfrågan.
Eller ring gärna Markus Christensson på +46 (0) 70-838 97 89














