Rymliga och flexibla lokaler i Jordbro – lager, kontor och showroom i modern fastighet
664-6 133 kvm
Nu finns möjlighet att hyra två attraktiva lokaler i samma fastighet, belägen i ett av Stockholmsregionens mest etablerade industri- och logistikområden i Jordbro. Här kombineras hög funktionalitet med modern standard och stor flexibilitet för att möta olika verksamheters behov.
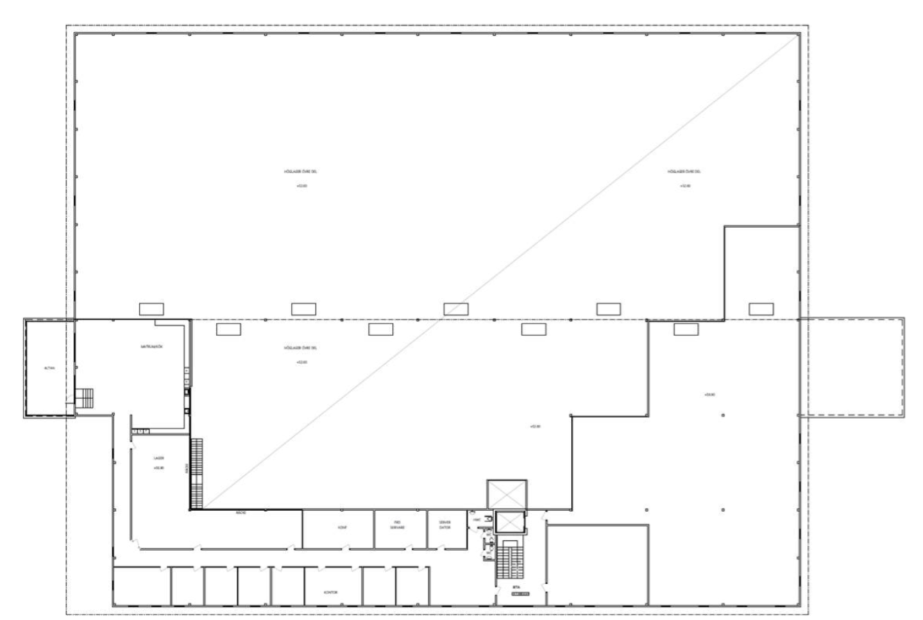
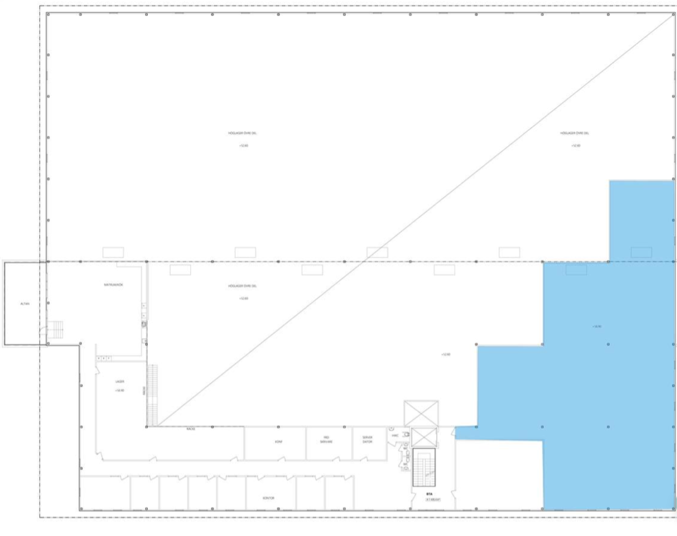
Den första lokalen är en stor och välutrustad lagerlokal om totalt 5 469 kvm, inklusive kontorsytor, som erbjuder optimala förutsättningar för en effektiv och smidig drift. Lagerytan har en fri takhöjd på upp till sju meter, vilket möjliggör flexibel lagring och hög volymkapacitet. Lokalen är utrustad med fyra lasthus, placerade två i vardera ände, vilket ger effektiva logistikflöden och smidiga in- och utlastningsmöjligheter. Hela lagret har nyligen fått energieffektiv LED-belysning installerad, vilket förbättrar både arbetsmiljö och driftsekonomi. Kontorsdelen består av fräscha och moderna ytor med WC, pentry, kök och omklädningsrum, vilket skapar en bekväm och funktionell arbetsvardag. Det finns även möjlighet att anpassa kontorsytorna helt efter verksamhetens behov.
Den andra lokalen är en flexibel yta om 664 kvm på plan 1 i samma fastighet. Lokalen är i dagsläget rå, vilket ger stor frihet att utforma den helt efter egna önskemål – exempelvis som kontor, showroom, kreativ ateljé eller ett modernt gym. Med en generös takhöjd på 4,5–5 meter skapas en ljus och rymlig miljö med många möjligheter. Lokalen nås smidigt via en personhiss med en kapacitet på 2 ton, vilket gör det enkelt att transportera även tyngre material och utrustning. Fastigheten ligger inom ett inhägnat och tryggt område med tillgång till rangerytor och flera parkeringsplatser, perfekt för både personal och besökare.
Här finns chansen att hyra en stor, välutrustad lagerlokal eller en mindre, flexibel yta – eller kombinera båda – i en fastighet som erbjuder allt för en effektiv och modern verksamhet.
25 km söder om centrala Stockholm
Hyr hela lokalen eller en del av den
4 lasthus, två på vardera sida
Upp till 5 meter i takhöjd
Nära anslutning till riksväg 73
Läge/närmaste ort
Jordbro
Jordbro ligger cirka 25 km söder om centrala Stockholm, på ett fantastiskt läge med nära anslutning till riksväg 73. Riksväg 73 går från Nynäshamn genom Jordbro och sträcker sig till centrala Stockholm, där ett nätverk av trafikleder över hela landet knyts samman. Fastigheten är belägen i Jordbro Företagspark som är ett av Stockholmsregionens största och mest expansiva industriområden. Området präglas av industri- och logistikverksamheter och hel del handel med stora aktörer. Serviceutbud med ett flertal restauranger, matvarubutik, gym och apotek finns i närområdet. Det finns goda kollektivtrafikförbindelser med buss och pendel till Stockholm med omnejd.
- 731 km
- Stockholm-Bromma flygplats16 km
- Bergs oljehamn13 km
- Jordbro0.7 km
- Lagervägen0.2 km
- Din Mat0.6 km
- Yarens pizzeria0.7 km
- Haninge centrum3 km
Avstånden är beräknade fågelvägen från postkodens mittpunkt.
Översikt
| Lediga lokaler | Kvm |
| Unit 6 - Lager och kontor | Kvm:5 469 |
| Unit 7 - Lager/Showroom | Kvm:664 |
| Unit 1 - Lager | Kvm:1 002 |
Varför Mileway?
Dedikerad Asset Manager
Flexibla hyresvillkor
Ledande i Sverige & Europa inom last mile-logistikfastigheter
Personlig service
Väl underhållna och säkra lokaler
Fokus på hållbar utveckling
Kontakta oss
Fyll i formuläret för att få mer information, boka en visning eller om du har en generell förfrågan.
Eller ring gärna Besart Ferizi på +46 (0) 76 238 38 92



















