Verkstads- och kontorslokal med stor uppställningsyta samt ljus kontorslokal med välkomnande entré och fri parkering
190-1 670 kvm
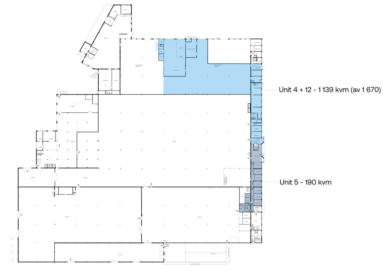
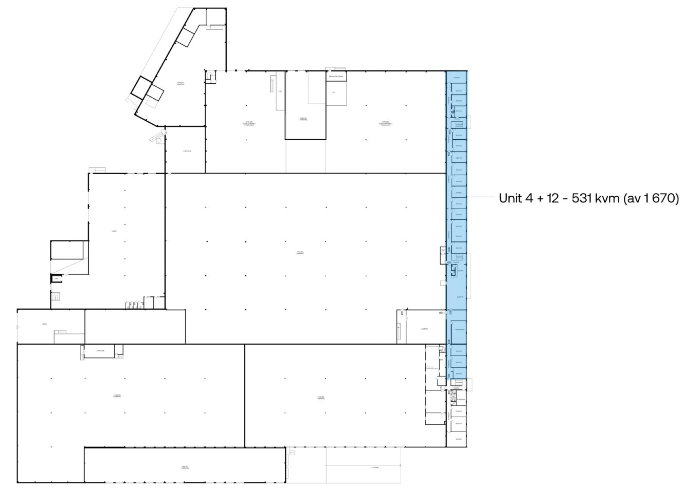
Kombinerad verkstads- och kontorslokal om 1 670 kvm med tvätthall, generös takhöjd och inhägnad gårdsyta – effektiv helhetslösning för verksamheter inom fordon, service och lätt industri. Lokalen har stora öppna ytor och är utrustad med tre markportar som möjliggör smidig in- och utlastning samt effektiv hantering av fordon eller utrustning. Den rymliga takhöjden på cirka fem meter gör utrymmet anpassningsbart för verkstad, produktion eller lagerverksamhet. Här finns även välplanerade personalytor med kök, matsal, omklädningsrum för både dam och herr, dusch, WC och RWC. Utomhus erbjuds generösa markytor med en inhägnad gård om cirka 1 664 kvm samt ytterligare cirka 900 kvm uppställningsyta utanför lokalen. Parkering finns direkt utanför byggnaden med gott om plats för personal, kunder och servicefordon. Lokalen kan dessutom anpassas efter verksamhetens specifika behov för att skapa en optimal arbetsmiljö.
I samma byggnad finns även en kontorslokal om 190 kvm som kan hyras ihop med den större lokalen eller separat. Ytan kan anpassas för både kontorsverksamhet och som lättare plocklager, exempelvis för en e-handelsverksamhet. Lokalen har i dagsläget en kontorsindelad planlösning med generösa gemensamma utrymmen, inklusive mötesrum, pentry, omklädningsrum, dusch samt WC/RWC.
Byggnaden har bra skyltläge mot riksväg 35 och det finns fri parkering i anslutning till lokalerna.
5 km söder om centrala Linköping
Takhöjd 5 meter
3 markportar
Bra exponering av skyltläge
Direkt anslutning till riksväg 35 och E4
Läge/närmaste ort
Linköping
Hackefors industriområde ligger precis intill Linköping flygplats och endast 5 kilometer söder om centrala Linköping. Området är optimalt ur logistiksynpunkt och närliggande riksväg 35 leder snabbt ut till E4 på endast några minuter. Andra företag lokaliserade i området är bland annat Beviks (BMW), KVD Bil och Maskinia. Kollektivtrafikförbindelser med lokalbuss till Hackefors avgår var 30:e minut från centrala Linköping och tar cirka 15 minuter.
- E 4 (113)4 km
- Stockholm-Skavsta flygplats83 km
- Igelsta Hamn143 km
- Linköping C4 km
- Landerydsvägen0.3 km
- Lidl1 km
- Restaurang Köket1 km
- Berga centrum3 km
Avstånden är beräknade fågelvägen från postkodens mittpunkt.
Översikt
| Lediga enheter | Kvm |
| Unit 5 - kontor | Kvm:190 |
| Unit 4 + 12 - Lager och kontor | Kvm:1 670 |
Varför Mileway?
Dedikerad Asset Manager
Flexibla hyresvillkor
Ledande i Sverige & Europa inom last mile-logistikfastigheter
Personlig service
Väl underhållna och säkra lokaler
Fokus på hållbar utveckling
Kontakta oss
Fyll i formuläret för att få mer information, boka en visning eller om du har en generell förfrågan.
Eller ring gärna Nathalie Håkansson på +46 (0) 70 279 61 45





















