Verkstadsgatan 4 / Åbyvägen 3
Kontrollanten 9Flertalet lediga lokaler med utrymme för lager, kontor och vårdmottagning
11-1 266 kvm
Industrifastighet med flera lediga lokaler med utrymme för kontor, lager och annan verksamhet. Fastigheten består av flera byggnader och ligger på inhägnat område med asfalterad gårdsyta och goda parkeringsmöjligheter.
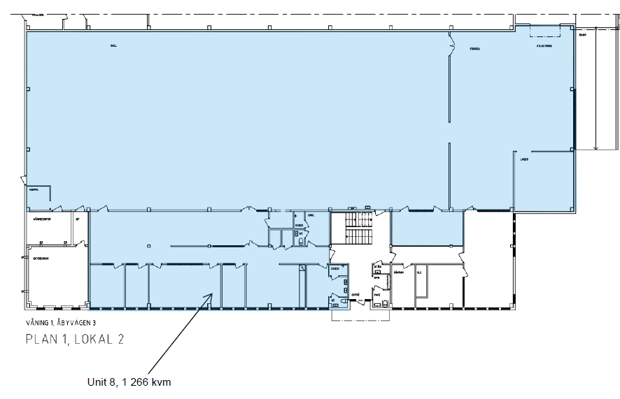
Unit 8
Lagerlokalen om 1 266 erbjuder ett rymligt lager med 7 meters takhöjd och LED-belysning för energieffektiv drift, och det finns idag ett nedpendlat akustiktak som kan tas bort vid behov. Egen lastkaj ger smidig in- och utlastning. I anslutning till lagret finns mindre kontorsytor samt personalutrymmen med kök, omklädningsrum och WC.
Unit X
Kontorshotell om totalt 425 kvm i gott skick. Planlösningen är kontorsindelad med tio separata kontor mellan 11 – 53 kvm(11, 15, 16, 18, 22, 22, 22, 24, 24 respektive 53 kvm). Det erbjuds flexibla ytor och generösa faciliteter med kök/pentry, omklädningsrum och WC.
Unit 1
Trevlig och nyrenoverad kontorslokal om 72 kvm. Lokalen rymmer kontorsrum, mötesrum och öppna arbetsytor samt har eget pentry och WC. Ljusa, fräscha ytor med bra ljusinsläpp.
Unit 27
Lagerlokal om 220 kvm på markplan med installerad oljeavskiljare samt goda lastningsmöjligheter med en takhöjd om fyra meter och egen markport. Kontorsytan består av två mindre kontorsrum och faciliteter erbjuds i form av kök/pentry, dusch, omklädningsrum och WC.
Unit 31
Här erbjuds en inbjudande kontorslokal på 117 kvm med kontorsindelad planlösning, konferensrum och generösa faciliteter med kök/pentry, förråd och WC.
3 kilometer sydväst om centrala Örebro
Lagerlokaler med egna lastportar och bra takhöjd
Flexibla kontorslokaler med möjlighet att anpassa storlek
Direkt anslutning till E18 och E20
Läge/närmaste ort
Örebro
Bista industriområde är beläget cirka 3 kilometer sydväst om centrala Örebro och ligger på ett bra logistikläge med närhet till E18 och E20. Området präglas av mindre lager- och logistikfastigheter, kontor och butiker. Enklare service med lunchservering finns i närområdet och fullt serviceutbud finns inom räckhåll i centrala Örebro. Det finns goda kollektivtrafikförbindelser med buss till centrala Örebro samt cykel- och gångväg.
- E 18;E 20;50 (111)0.4 km
- Oljehamnen58 km
- Örebro Södra1 km
- Risbergska0.4 km
- Willy:s0.6 km
- Bista restaurang & kolgrill0.1 km
- Haga Centrum0.6 km
Avstånden är beräknade fågelvägen från postkodens mittpunkt.
Översikt
| Lediga enheter | Kvm |
| Unit X - kontorshotell | Kvm:425 |
| Unit 3 - UTHYRD | Kvm:- |
| Unit 7 - UTHYRD | Kvm:- |
| Unit 1 - Kontor | Kvm:72 |
| Unit 27 - lager och kontor | Kvm:220 |
| Unit 31 - kontor | Kvm:117 |
| Unit 8 - lager och kontor | Kvm:1 266 |
Varför Mileway?
Dedikerad Asset Manager
Flexibla hyresvillkor
Ledande i Sverige & Europa inom last mile-logistikfastigheter
Personlig service
Väl underhållna och säkra lokaler
Fokus på hållbar utveckling
Kontakta oss
Fyll i formuläret för att få mer information, boka en visning eller om du har en generell förfrågan.
Eller ring gärna Susanne Bermark på +46 (0) 72 375 02 19




























