Anpassningsbar kontorslokal med gott om parkeringsplatser på attraktivt handelsläge i Fosie
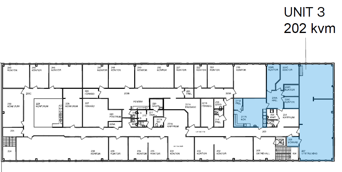
202 kvm
Nu finns möjligheten att hyra en ledig kontorslokal om 202 kvm. Lokalen är belägen på plan två och består av en blandad planlösning med separata kontorsrum i varierande storlek, öppna ytor med utrymme för kontorslandskap samt faciliteter i form av kök/pentry, förråd och WC.
Det finns möjlighet att hyra en ca 1 400 kvm stor markyta med attraktivt och lättillgängligt läge i Fosie industriområde. Marken kan anpassas efter behov – exempelvis grusas, asfalteras och hägnas in – för att passa olika typer av verksamheter.
Byggnaden ligger med fri access mot Stenyxegatan och det erbjuds fri parkering i anslutning till lokalerna, möjlighet till elbilsladdning finns.
10 km sydost om centrala Malmö
kontorslokal som anpassas efter önskemål
1 markport (möjlighet till fler)
Stor uppställningsyta om 1 400 kvm
Möjlighet till elbilsladdning
Direkt anslutning till E6/E20, E65 och Inre Ringvägen
Läge/närmaste ort
Malmö
Fosie ligger cirka 10 kilometer sydost om centrala Malmö. Det ligger strategiskt placerat direkt intill de viktiga transportlänkarna E6, E65 och Inre Ringvägen med snabb access in och ut ur Malmö. Området präglas delvis av verkstäder men även av blandad företagsverksamhet inom lättindustri och handel. Jägerso Center finns inom nära räckhåll med stort serviceutbud av butiker och restauranger. Det finns goda kollektivtrafikförbindelser med buss till centrala Malmö.
- E 6;E 20;E 22 (13)0.7 km
- Malmö Airport21 km
- Trelleborgs Hamn22 km
- Persborg3 km
- Benkammen0.1 km
- Ekohallen1 km
- Burger King0.6 km
- e-center1 km
Avstånden är beräknade fågelvägen från postkodens mittpunkt.
Översikt
| Lediga enheter | Kvm |
| Unit 3 - kontor | Kvm:202 |
| Mark | Kvm:1 400 |
Varför Mileway?
Dedikerad Asset Manager
Flexibla hyresvillkor
Ledande i Sverige & Europa inom last mile-logistikfastigheter
Personlig service
Väl underhållna och säkra lokaler
Fokus på hållbar utveckling
Kontakta oss
Fyll i formuläret för att få mer information, boka en visning eller om du har en generell förfrågan.
Eller ring gärna Ida Friggerdal på +46 (0) 72 375 02 14









