Modern kontorslokal i tre plan i Arlanda Stad
817 kvm
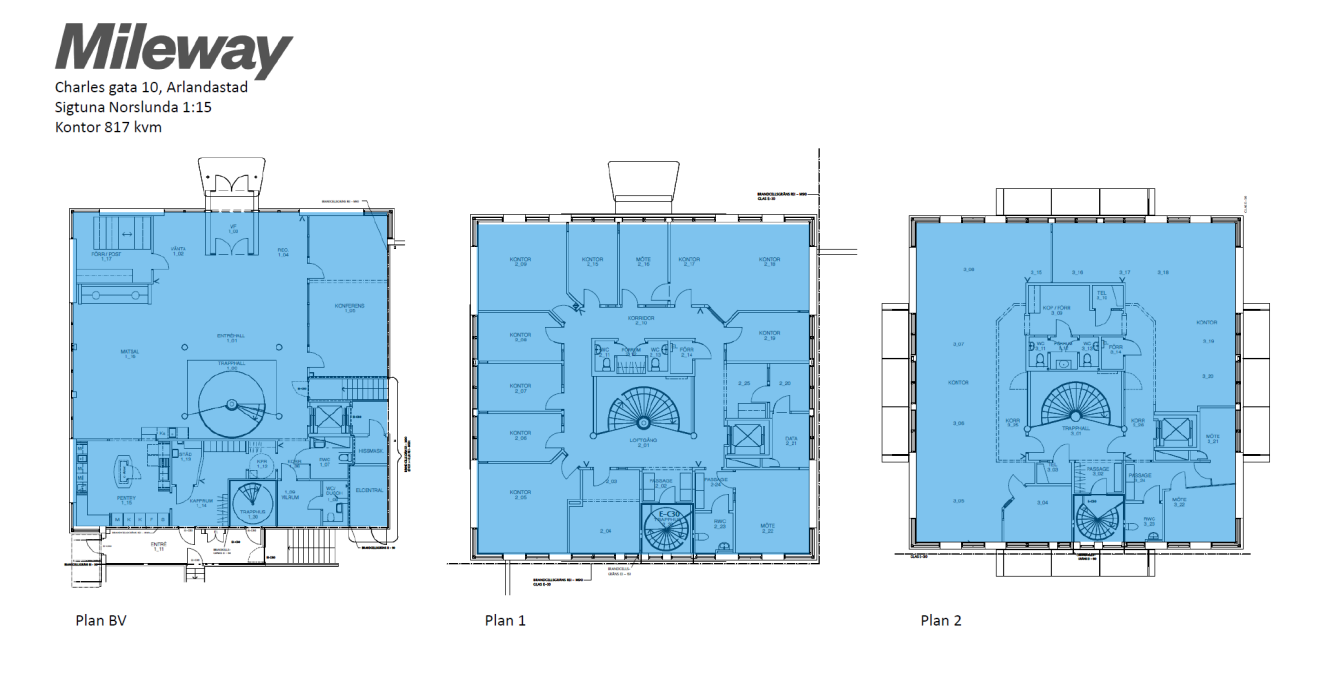
Nu finns möjlighet att hyra en kontorslokal i Arlanda Stad. Lokalen omfattar totalt 817 kvm och är fördelad på tre plan med hiss mellan våningarna. Den renoverades 2019 och har ljusa ytor samt en planlösning som ger en funktionell och trivsam arbetsmiljö.
Lokalen består av kontorsrum, öppet arbetslandskap, konferensrum och reception, vilket ger en flexibel lösning som fungerar för olika typer av verksamheter. Här finns plats både för samarbete i öppna ytor och för mer avskilt arbete i egna rum.
Lokalen passar företag som söker ett modernt kontor i ett lättillgängligt läge med närhet till både Stockholm och Uppsala.
Kontakta oss för mer information eller för att boka en visning.
35 km norr om centrala Stockholm
Hiss mellan våningsplanen
Stort serviceutbud med butiker och restauranger
Nära anslutning till E4
Läge/närmaste ort
Arlandastad
Fastigheten ligger i Arlanda Stad, ett område som fortsätter att utvecklas och där flera företag redan etablerat sig. Det finns parkeringsmöjligheter i anslutning till byggnaden och området har god tillgänglighet via E4 och Arlanda flygplats. I närområdet finns även restauranger, gym, hotell och annan service.
- 2730.2 km
- Stockholm-Arlanda flygplats3 km
- Bergs oljehamn22 km
- Märsta2 km
- Pionjärvägen0.2 km
- Lidl1 km
- Reception and restaurant0.9 km
- Valsta centrum2 km
Avstånden är beräknade fågelvägen från postkodens mittpunkt.
Översikt
| Lediga enheter | Kvm |
| Kontor | Kvm:817 |
Varför Mileway?
Dedikerad Asset Manager
Flexibla hyresvillkor
Ledande i Sverige & Europa inom last mile-logistikfastigheter
Personlig service
Väl underhållna och säkra lokaler
Fokus på hållbar utveckling
Kontakta oss
Fyll i formuläret för att få mer information, boka en visning eller om du har en generell förfrågan.
Eller ring gärna Jonatan Westerblom på + 46 (0) 70 676 89 71













