Ljusa kontorslokaler med fräscha faciliteter i väletablerade Bredden
160-282 kvm
Trevlig kontorsfastighet med två lediga kontorslokaler om 282 kvm samt 160 kvm.
Unit 6
Kontorslokal om 282 kvm på första våningen. Lokalen är består av ett eget våningplan och bjuder på en blandad planlösning med kontor i olika storlekar, konferensrum samt faciliteter som förråd, kök/pentry och WC. Det finns goda möjligheter att anpassa lokalen enligt hyresgästens önskemål.
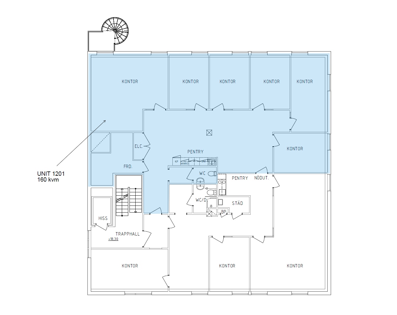
Unit 1102
En ledig kontorslokal om 160 kvadratmeter på plan 2. Lokalen är i mycket bra skick och erbjuder en ljus och trevlig arbetsmiljö. Planlösningen består av flera kontorsrum i olika storlekar, ett konferensrum, matsal/pentry, förråd samt WC. Byggnaden har fri access från Bergkällavägen och det finns parkeringsplatser i direkt anslutning till lokalen.
Byggnaden ligger med fri access utåt Bergkällavägen och det finns parkeringsplatser i anslutning till lokalen.
25 km norr om centrala Stockholm
Stort serviceutbud i närområdet
Kontorslokaler i gott skick
Direkt anslutning till E4
Läge/närmaste ort
Sollentuna
Bredden (tidigare kallat InfraCity) är ett väletablerat företagsområde cirka 25 km norr om centrala Stockholm med strategisk placering precis intill E4. Centrala Stockholm nås på cirka 25 min med bil och Arlanda på cirka 15 minuter. Det här är en modern, flexibel och komplett företagpark med lättindustri, lager, handel och brett serviceutbud. Det finns goda kollektivtrafikförbindelser till centrala Stockholm med omnejd.
- E 4 (175)0.3 km
- Stockholm-Bromma flygplats10 km
- Bergs oljehamn15 km
- Rotebro1 km
- Bergkällavägen0.04 km
- Coop Bredden0.3 km
- Restaurang & Pizzeria Mexicana0.2 km
- Väsby Centrum2 km
Avstånden är beräknade fågelvägen från postkodens mittpunkt.
Översikt
| Lediga enheter | Kvm |
| Unit 1201 - kontor | Kvm:160 |
| Unit 6 - kontor | Kvm:282 |
Varför Mileway?
Dedikerad Asset Manager
Flexibla hyresvillkor
Ledande i Sverige & Europa inom last mile-logistikfastigheter
Personlig service
Väl underhållna och säkra lokaler
Fokus på hållbar utveckling
Kontakta oss
Fyll i formuläret för att få mer information, boka en visning eller om du har en generell förfrågan.
Eller ring gärna Nathalie Håkansson på +46 (0) 70 279 61 45



















