Modern logistiklokal med 22 portar, 12 m takhöjd och inhägnad gård
8 150 kvm
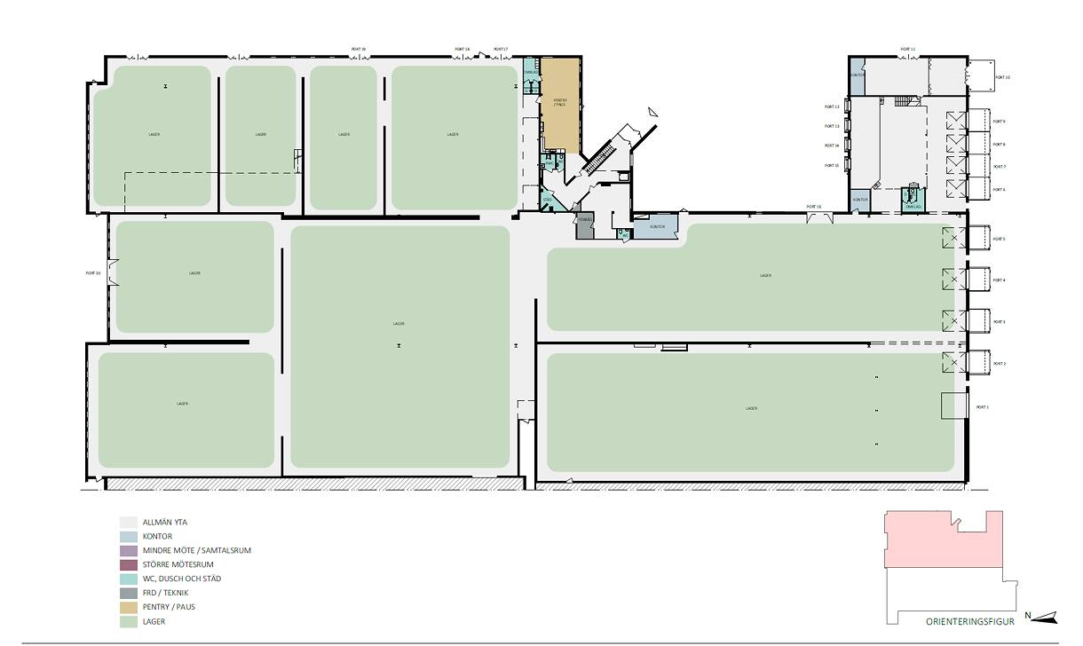
Ledig och mycket välutrustad lager- och logistikfastighet om totalt cirka 8 150 kvm, med tillhörande kontorsytor om cirka 410 kvm. Fastigheten är optimalt anpassad för TPL-verksamhet, e-handel, distribution och annan logistikintensiv verksamhet. Lagerytorna är öppna och effektiva med upp till 12 meters takhöjd, vilket skapar goda förutsättningar för hög lagringskapacitet, pallställ och rationell hantering av stora godsvolymer.
Den flexibla planlösningen gör lokalen väl lämpad för både lager, plock, pack och omlastning. Fastigheten har mycket god logistikfunktion med totalt 22 portar, varav 9 markportar och 13 lasthus, vilket möjliggör ett effektivt och smidigt godsflöde för både inkommande och utgående transporter.
Till fastigheten hör även en stor inhägnad uteyta som ger hög säkerhet samt generösa uppställnings- och manöverytor för lastbilar, trailers och containers – en stor fördel för verksamheter med hög transportfrekvens. Personalutrymmena är funktionellt utformade och inkluderar kontor, pausrum, pentry, RWC/WC samt duschar och omklädningsrum, vilket skapar en komplett och trivsam arbetsmiljö för både lager- och kontorspersonal.
6 kilometer väster om centrala Västerås
Upp till 12 meters takhöjd
22 portar, 9 markportar och 13 lasthus
Stor inhägnad gårdsyta
Direkt anslutning till E18
Läge/närmaste ort
Västerås
Hälla är ett attraktivt lättindustriområde 6 kilometer väster om centrala Västerås, strategiskt lokaliserat alldeles intill Västerås flygplats och den viktiga transportlänken E18. Området präglas av lättindustri, logistik, lager och handel med ett brett serviceutbud på närliggande Hälla Shopping och Hälla Syd. Det finns goda kollektivtrafikförbindelser med buss till centrala Västerås.
- E 18 (137)0.3 km
- Stockholm-Arlanda flygplats47 km
- Igelsta Hamn48 km
- Västerås Central2 km
- Tortunavägen0.2 km
- ICA Maxi Hälla0.4 km
- Hällabaren0.04 km
- Skrapan2 km
Avstånden är beräknade fågelvägen från postkodens mittpunkt.
Översikt
| Lediga enheter | Kvm |
| Unit 15 - Lager och kontor | Kvm:8 150 |
Varför Mileway?
Dedikerad Asset Manager
Flexibla hyresvillkor
Ledande i Sverige & Europa inom last mile-logistikfastigheter
Personlig service
Väl underhållna och säkra lokaler
Fokus på hållbar utveckling
Kontakta oss
Fyll i formuläret för att få mer information, boka en visning eller om du har en generell förfrågan.
Eller ring gärna Lisa Tegnér på +46 (0) 73 056 08 74




























