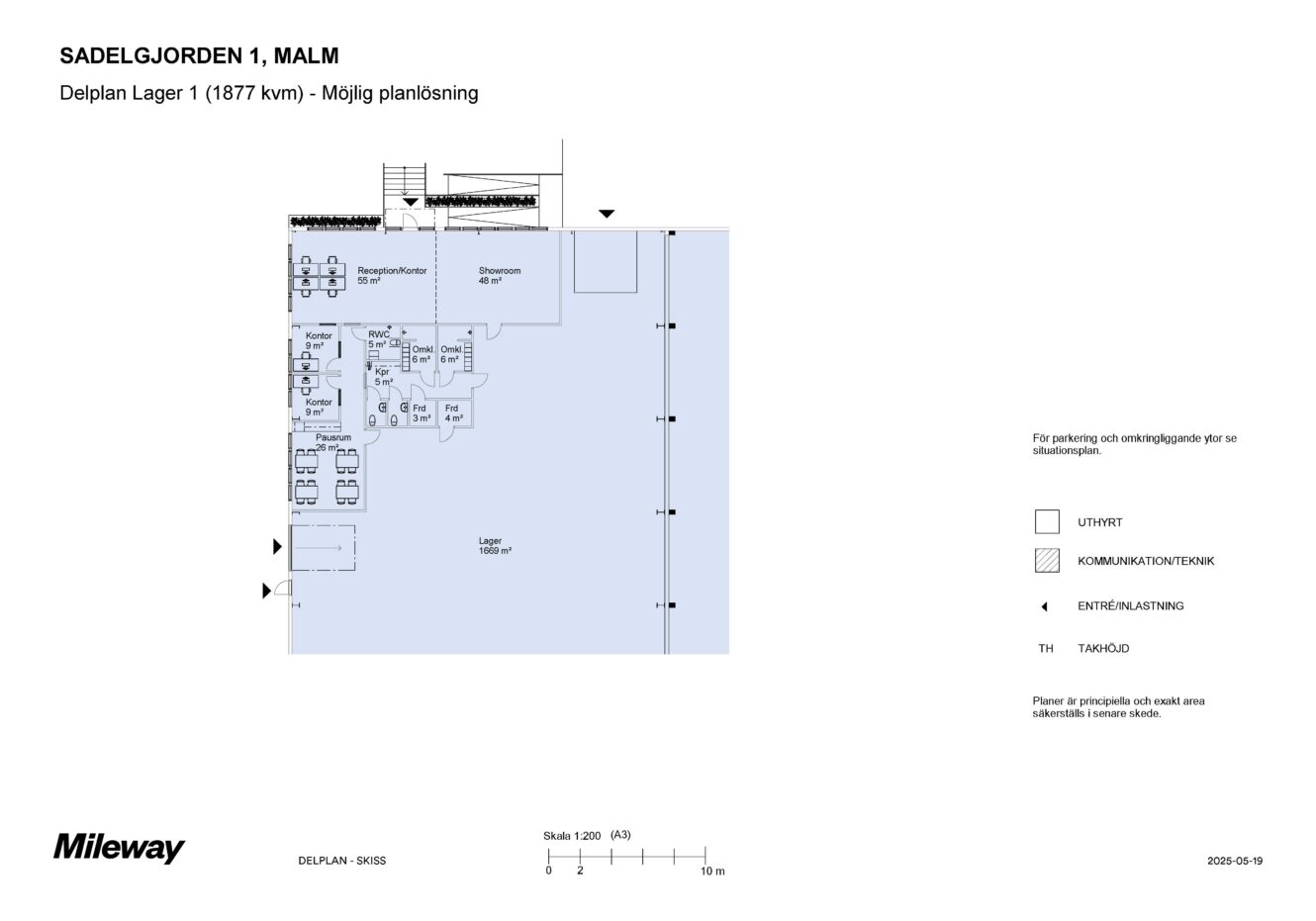
Flexibel lagerlokal med lastkaj och uppställningsyta
1 877 kvm
Stor, flexibel lageryta med cirka 5,5 meters takhöjd och inhägnad markyta om cirka 2 500 kvm. Lokalen kan anpassas efter era behov, med möjlighet att integrera kundentré, showroom eller kontorsdel direkt i anslutning till lagret. Det finns en befintlig lastkaj med port, och i samråd med ny hyresgäst planeras en ny markport samt en representativ huvudentré. Den stora markytan kan göras om till parkeringsplatser för personbilar.
I direkt anslutning finns möjlighet att hyra upp till 219 kvm nyrenoverade kontorsytor med modern standard. Kontorsdelen erbjuder tillgång till gemensamma faciliteter såsom kök/pentry, omklädningsrum, dusch och WC – för en trivsam och funktionell arbetsmiljö.
Lokalen passar utmärkt för företag inom logistik, lagerhållning, produktion, distribution eller grossistverksamhet – särskilt för aktörer med behov av både inomhusyta och uppställnings- eller parkeringsmöjligheter. Fastigheten ligger på inhägnat område med tillgång via grindar.
10 km sydost om centrala Malmö
Lastkaj med portar
Takhöjd 5,5 meter
Möjligt att göra om markyta till stor parkering
Nyrenoverade kontorsytor
Direkt anslutning till E6/E20 och E65
Läge/närmaste ort
Malmö
Elisedal är ett industriområde 10 km sydost om centrala Malmö. Det ligger strategiskt placerat direkt intill de viktiga transportlänkarna E6, E65 och Inre Ringvägen med snabb access in och ut ur Malmö. Området präglas delvis av verkstäder men även av blandad företagsverksamhet inom lättindustri och handel. Jägerso Center finns inom nära räckhåll med stort serviceutbud av butiker och restauranger. Det finns goda kollektivtrafikförbindelser med buss till centrala Malmö.
- E 65 (14)0.3 km
- Malmö Airport12 km
- Trelleborgs Hamn14 km
- Oxie2 km
- Elisedal0.1 km
- Coop Forum0.6 km
- Burger King0.6 km
- Jägersro Center0.6 km
Avstånden är beräknade fågelvägen från postkodens mittpunkt.
Översikt
| Lediga enheter | Kvm |
| Lager 1 | Kvm:1 877 |
| Kontorsytor | Kvm:60 - 219 |
Varför Mileway?
Dedikerad Asset Manager
Flexibla hyresvillkor
Ledande i Sverige & Europa inom last mile-logistikfastigheter
Personlig service
Väl underhållna och säkra lokaler
Fokus på hållbar utveckling





















