Modern lokal för lager, showroom och kontor på bästa exponeringsläge i Kirseberg
1 440 kvm
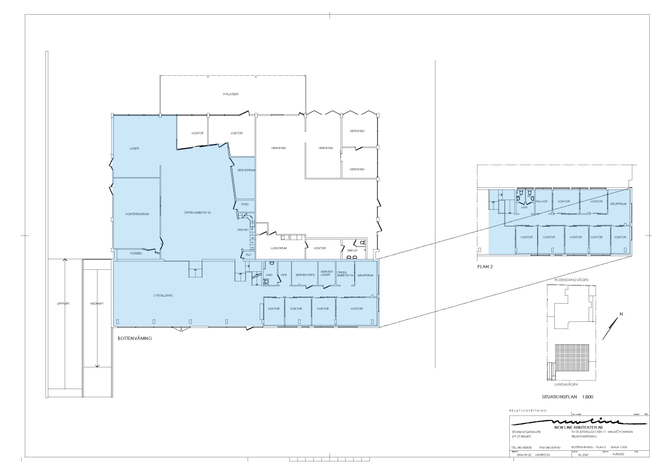
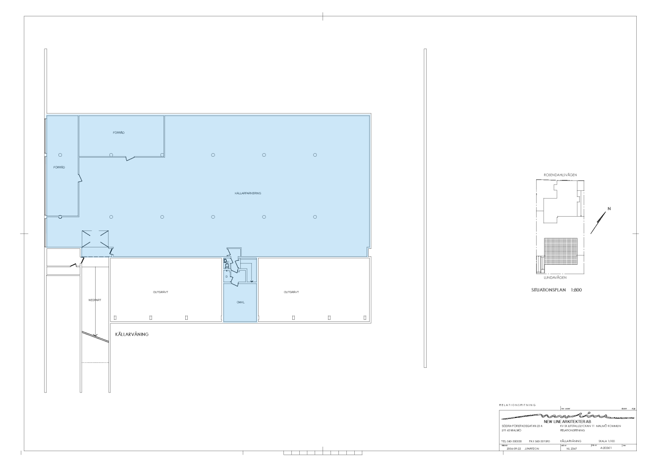
Ledig modern lokal om totalt 1 440 kvm som kombinerar lager, showroom och kontor i en helhetslösning. Lagerytan om 748 kvm är belägen på källarplan och nås via port för smidig in- och utlastning, med möjlighet att även nyttja ytan som garage vid behov.
Ytor för showroom är belägna på markplan, och de stora skyltfönstrena utåt Lundavägen ger ett härligt ljusinsläpp i lokalen. Lokalen passar bra för olika typer av showroom, även bilhall eller gym skulle kunna vara möjligt.
Kontorsytorna är fördelade på två plan och erbjuder representativa arbetsmiljöer med flera kontors- och mötesrum i varierande storlek, pausytor samt kök och pentry. I direkt anslutning till lokalen finns goda parkeringsmöjligheter.
2 km norr om centrala Malmö
Fräscha ytor i modernt skick
Egen entré samt markport
Nära anslutning till Inre Ringvägen, E6/E20 och E22
Läge/närmaste ort
Malmö
Kirseberg ligger 2 kilometer norr om centrala Malmö och präglas av ett levande centrum med butiker, restauranger och bostäder. Längs med Lundavägen ligger ett lättindustriområde optimalt ur logistiksynpunkt, med direkt anslutning till Stockholmsvägen och E6/E20 samt nära anslutning till Inre Ringvägen och E22. Grannskapet präglas av B2B-handel och närområdet erbjuder ett stort serviceutbud av butiker, närservice och restauranger. Det finns goda kollektivtrafikförbindelser med buss till centrala Malmö.
- E 6.012 km
- Malmö Airport23 km
- Trelleborgs Hamn28 km
- Östervärn0.6 km
- Malmö Kirsebergsskolan0.05 km
- Folkets livs0.3 km
- Tornet Pizzeria0.3 km
- Entré0.9 km
Avstånden är beräknade fågelvägen från postkodens mittpunkt.
Översikt
| Lediga enheter | Kvm |
| Lager och kontor | Kvm:1 440 |
Varför Mileway?
Dedikerad Asset Manager
Flexibla hyresvillkor
Ledande i Sverige & Europa inom last mile-logistikfastigheter
Personlig service
Väl underhållna och säkra lokaler
Fokus på hållbar utveckling
Kontakta oss
Fyll i formuläret för att få mer information, boka en visning eller om du har en generell förfrågan.
Eller ring gärna Jennie Hansen på +46 (0) 76 600 28 58


























