Fräsch kontorslokal i mycket bra skick - möjlighet till snabbt tillträde finns
206 kvm
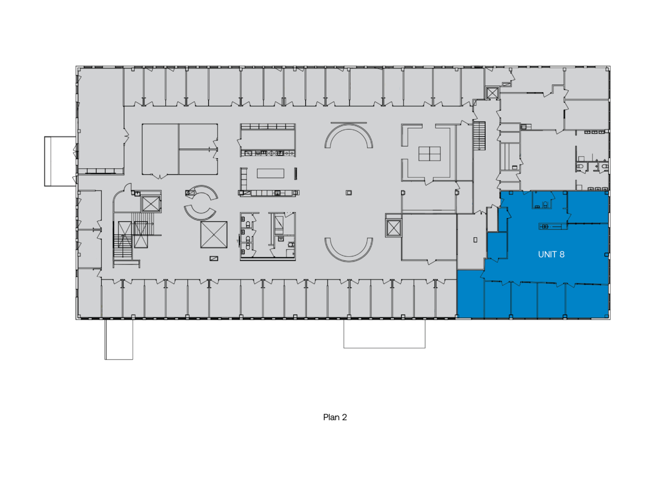
Kontorslokal om 206 kvm i gott skick belägen på plan två. Planlösningen består av öppet kontorslandskap med möjlighet till 4-6 kontorsplatser, fyra kontorsrum samt konferensrum med plats för 8-10 personer. Faciliteter finns i form av kök/pentry med anknytning till det öppna landskapet samt WC med dusch. Lokalen är utrustad med energibesparande LED-belysning och har genomgått en ytskiktsrenovering 2023, vilket gör den inflyttningsbar omgående. Byggnaden ligger med fri access utmed Ågatan och det finns goda möjligheter till parkering i anslutning till lokalen. Laddstolpar finns och ett elbilsladdningsprojekt är planerat under 2024, vilket kommer resultera i ytterligare laddstolpar.
5 km nordost om centrala Malmö
Moderna lokaler i gott skick
LED-belysning
Direkt anslutning till Inre Ringvägen, E6/E20 och E22
Läge/närmaste ort
Malmö
Fastigheten är belägen i Sege industriområde med närhet till Arlöv, cirka 5 km norr om centrala Malmö. Läget är optimalt ur logistiksynpunkt med direkt anslutning till E6/E20 och nära anslutning till Inre Ringvägen, E22 samt Västkustvägen. Området präglas av lättindustri, B2B-handel och erbjuder ett enklare serviceutbud av butiker samt lunchrestauranger. Det finns goda kollektivtrafikförbindelser med buss till centrala Malmö.
- E 6.010.2 km
- Malmö Airport22 km
- Trelleborgs Hamn29 km
- Burlöv2 km
- Malmö Ågatan0.1 km
- Circle K0.9 km
- Bai Ka Prao0.8 km
- Burlöv Center2 km
Avstånden är beräknade fågelvägen från postkodens mittpunkt.
Översikt
| Lediga lokaler | Kvm |
| Unit 8 - kontor | Kvm:206 |
Varför Mileway?
Dedikerad Asset Manager
Flexibla hyresvillkor
Ledande i Sverige & Europa inom last mile-logistikfastigheter
Personlig service
Väl underhållna och säkra lokaler
Fokus på hållbar utveckling
Kontakta oss
Fyll i formuläret för att få mer information, boka en visning eller om du har en generell förfrågan.
Eller ring gärna Alexander Otelea på +46 (0) 76 864 62 14
















