Ledigt kyl- och fryslager med fem lastportar samt ledigt garage på källarplan
2 509-3 900 kvm
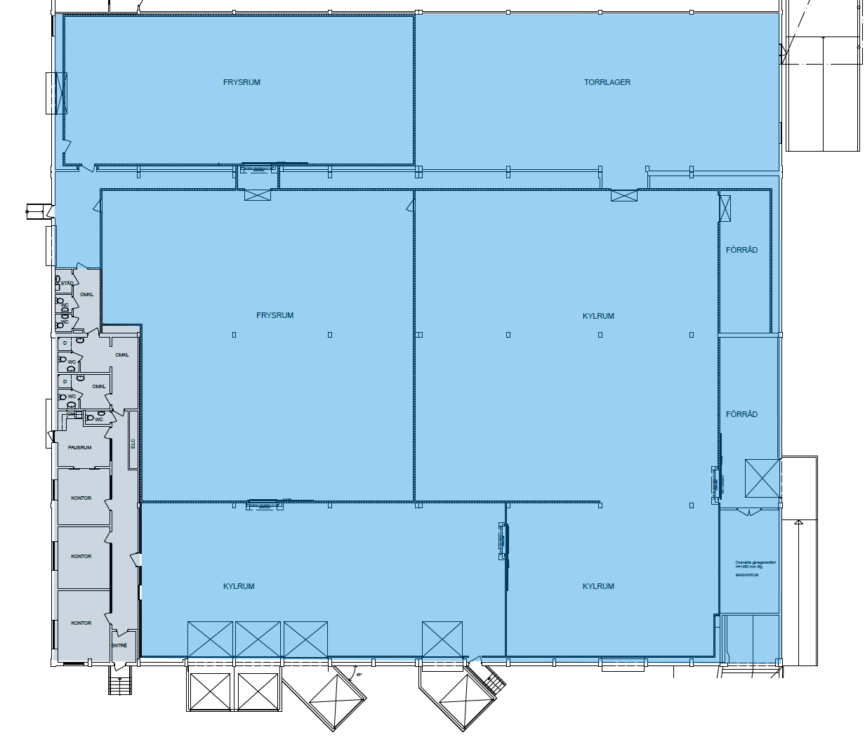
Nu finns en unik möjlighet att hyra en välutrustad lagerlokal om 2 509 kvm inklusive kontorsytor, perfekt för livsmedelslogistik och kylvaror. Lokalen är optimerad för effektiv hantering med ett frysrum på 735 kvm, ett kyllager på 1 030 kvm, ett torrlager på 300 kvm samt ett truckrum på 50 kvm. Här finns utmärkta lastmöjligheter med fyra lasthus, varav två med sidoinlastning, samt en markport med truckrum och laddningsstation, med möjlighet att installera ytterligare två lasthus eller lastportar. Takhöjden varierar från ca 3.6 upp till 4.4 meter. De flexibla kontorsytorna omfattar 139 kvm och rymmer tre kontorsrum för 8–10 personer, uppehållsrum med kök och pentry, omklädningsrum och WC.
Här finns även ett ledigt garage om 3 900 kvm som kan hyras tillsammans med ovan yta eller separat. Garaget är beläget på källarplan har direkt tillträde med bil via ramp och maxhöjd på 2,5 meter. Lokalen har öppen planlösning och faciliteter såsom pausrum, omklädningsrum och WC.
Fastigheten ligger på inhägnat område med asfalterad gårdsyta.
3 km norr om centrala Malmö
Lagerlokal med 4 lasthus + 1 markport (möjlighet till fler)
Kyl- och fryslager
Takhöjd upp till 4.4 meter
Garage med möjlighet till anpassning av planlösning
Nära anslutning till E6/E20 och E22
Läge/närmaste ort
Malmö
Östra hamnen är ett attraktivt industriområde endast 3 km norr om centrala Malmö. Industriområdet ligger i nära anslutning till Inre Ringvägen som tar dig ut på E6 och E22 på några minuter. Kollektivtrafikförbindelser med stadsbuss 32 till Malmö Aspögatan avgår var 10:e minut från centrala Malmö och tar 10 minuter.
- E 6.010.7 km
- Malmö Airport14 km
- Copenhagen Malmö Port18 km
- Östervärn1 km
- Aspögatan0.1 km
- Circle K0.5 km
- Restaurang Postiljonen0.2 km
- Entré1 km
Avstånden är beräknade fågelvägen från postkodens mittpunkt.
Översikt
| Lediga enheter | Kvm |
| Unit 1 + 4 - lager och kontor | Kvm:2 509 |
| Unit 6 - garage | Kvm:3 900 |
Varför Mileway?
Dedikerad Asset Manager
Flexibla hyresvillkor
Ledande i Sverige & Europa inom last mile-logistikfastigheter
Personlig service
Väl underhållna och säkra lokaler
Fokus på hållbar utveckling
Kontakta oss
Fyll i formuläret för att få mer information, boka en visning eller om du har en generell förfrågan.
Eller ring gärna Viktor Noring på +46 (0) 76 600 30 59























