Lokal i bästa läge i Veddesta – lager och kontor
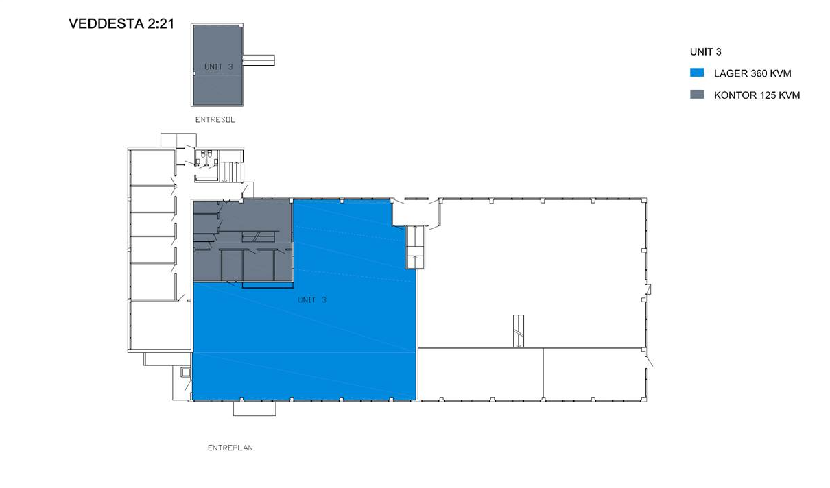
485 kvm
Nu finns möjlighet att hyra en välplanerad lager- och kontorslokal om 485 kvm med ett strategiskt läge i Veddesta, precis intill Veddesta Handelsplats. Lokalen har mycket god tillgänglighet och passar utmärkt för verksamheter inom exempelvis lager, logistik, montage, teknik eller liknande områden.
Lokalen är belägen på bottenvåning och håller ett gott skick med genomtänkta ytor som skapar effektiva och smidiga arbetsflöden. Entresolplanet ger extra flexibilitet och kan användas för både lager- och kontorsändamål. Den stora entrédörren möjliggör enkel in- och utlastning, och takhöjden om cirka fem meter ger goda förutsättningar för lagerhantering. I lokalen finns även WC och dusch, vilket bidrar till en funktionell och bekväm arbetsmiljö.
20 km norr om centrala Stockholm
Takhöjd 5 meter
Stor entrédörr
Nära anslutning till E18
Läge/närmaste ort
Veddesta
Fastigheten har ett strategiskt läge med skyltmöjlighet mot Nettovägen, endast 20 km från centrala Stockholm. Direkt access till E18, och närhet även till E4 och E20 gör det lätt att nå Stockholm, Västerås och Uppsala.
Området är i stark utveckling och erbjuder god blandning av industri, logistik och handel. Närservice finns i Barkarby handelsplats och Jakobsbergs centrum, och området har pendeltåg, buss och framtida tunnelbanestation inom räckhåll.
- E 18 (155)0.6 km
- Stockholm-Bromma flygplats5 km
- Bergs oljehamn13 km
- Barkarby0.8 km
- Nettovägen0.03 km
- Willys0.1 km
- Pizzeria Stjärnhuset0.2 km
- Barkarby centrum1 km
Avstånden är beräknade fågelvägen från postkodens mittpunkt.
Översikt
| Lediga enheter | Kvm |
| Unit 3 - Lager och kontor | Kvm:485 |
Varför Mileway?
Dedikerad Asset Manager
Flexibla hyresvillkor
Ledande i Sverige & Europa inom last mile-logistikfastigheter
Personlig service
Väl underhållna och säkra lokaler
Fokus på hållbar utveckling
Kontakta oss
Fyll i formuläret för att få mer information, boka en visning eller om du har en generell förfrågan.
Eller ring gärna Sanna Backenroth på + 46 (0)70 513 79 62












