Rymlig lokal med verkstad, lager och kontor i expansivt område
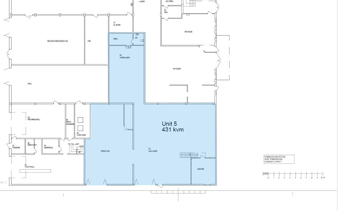
431 kvm
Nu finns möjligheten att hyra en flexibel och välplanerad lokal om totalt 431 kvm – perfekt för företag som söker en kombination av verkstad, lager, mindre butik/showroom och kontor i ett strategiskt och lättillgängligt industriområde. Rymliga ytor som passar utmärkt för verkstad, lager eller serviceverksamhet. Separat kontorsdel för administrativa arbetsplatser. Trevlig entré som med fördel kan användas som mindre butiksdel, showroom eller kundvänlig väntyta. Lokalen är utrustad med 2 markportar för smidig in- och utlastning. 4 meters takhöjd ger god rymd och flexibilitet för olika typer av verksamheter. Kök/pentry, WC och omklädningsrum skapar en komplett och trivsam arbetsmiljö.
Till lokalen hör hela 2 300 kvm markyta inom inhägnat område, vilket ger utmärkta möjligheter för uppställning av fordon, materialhantering, förvaring eller annan utomhusverksamhet i trygg miljö. En flexibel lokal som erbjuder både funktionalitet och goda utvecklingsmöjligheter för verksamheter med behov av yta – både inne och ute.
20 km norr om centrala Stockholm
Uppställningsyta 2 300 kvm
2 markportar
Takhöjd 4 meter
Direkt anslutning till E18
Läge/närmaste ort
Järfälla
Veddesta industriområde ligger i Järfälla cirka 20 km norr om centrala Stockholm med strategisk placering alldeles intill E18. Järfälla kommun är en av de mest expansiva i Stockholmsområdet och stor utveckling väntas av detta område som idag präglas av en stor variation av verksamheter, industrier och bostäder. Stort serviceutbud finns inom nära räckhåll i Barkaby handelsområde och Jakobsbergs centrum. Det finns goda kollektivtrafikförbindelser med pendeltåg och buss till Veddesta och centrala Stockholm (på sikt även tunnelbana).
- E 18 (155)1 km
- Stockholm-Bromma flygplats8 km
- Bergs oljehamn21 km
- Barkarby1 km
- Viksjöleden0.1 km
- Willys0.3 km
- Pizzeria Stjärnhuset0.2 km
- Barkarby centrum2 km
Avstånden är beräknade fågelvägen från postkodens mittpunkt.
Översikt
| Lediga enheter | Kvm |
| Unit 5 | Kvm:431 |
Varför Mileway?
Dedikerad Asset Manager
Flexibla hyresvillkor
Ledande i Sverige & Europa inom last mile-logistikfastigheter
Personlig service
Väl underhållna och säkra lokaler
Fokus på hållbar utveckling
Kontakta oss
Fyll i formuläret för att få mer information, boka en visning eller om du har en generell förfrågan.
Eller ring gärna Nathalie Håkansson på + 46 (0) 70 279 61 45











