Lediga lager- och kontorslokaler med ljusa ytor i gott skick
218-968 kvm
Unit 6
Flexibel lager- och verksamhetslokal om ca 218 kvm med tillhörande kontorsdel. Lokalen erbjuder effektiva ytor och passar väl för verksamheter inom lager, service eller lättare produktion.
Lagerytan har en takhöjd om cirka 6 meter och nås via egen markport, vilket ger goda förutsättningar för smidig in- och utlastning. I anslutning finns en mindre kontorsdel med plats för upp till fyra arbetsplatser samt faciliteter såsom pentry och WC.
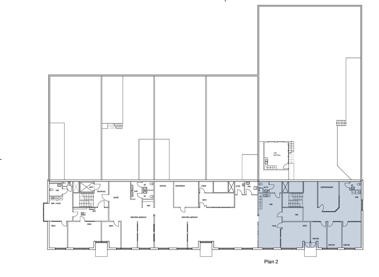
Unit 8
Välplanerad lager- och kontorslokal om ca 968 kvm. Lagret är placerat i markplan och omfattar cirka 779 kvm, med tre markportar som skapar smidiga flöden för in- och utleveranser. Kontorsdelen om cirka 189 kvm är fördelad på två våningsplan och erbjuder en ljus och funktionell arbetsmiljö med tillgång till pentry, WC och mötesrum.
Lokalerna erbjuder god flexibilitet och kan anpassas efter verksamhetens behov, samtidigt som läget i Toftanäs ger enkel access till större trafikleder och god tillgänglighet för både personal och transporter. Fastigheten är delvis inhägnad och erbjuder goda parkeringsmöjligheter i direkt anslutning.
8 kilometer öster om centrala Malmö
Ljusa och moderna kontorslokaler
Fri parkering
I nära anslutning till E6
Läge/närmaste ort
Malmö
Toftanäs ligger 8 kilometer öster om centrala Malmö och är ett viktigt industri- och handelsområde. Området, som ligger i närheten av E6, har vuxit kraftigt de senaste åren och präglas av handel, lager och logistikverksamheter. Det finns ett brett serviceutbud med butiker och lunchrestauranger i närområdet samt goda kollektivtrafikförbindelser med buss till centrala Malmö.
Översikt
| Lediga enheter | Kvm |
| Unit 6 - lager och kontor | Kvm:218 |
| Unit 8 - lager och kontor | Kvm:968 |
Varför Mileway?
Dedikerad Asset Manager
Flexibla hyresvillkor
Ledande i Sverige & Europa inom last mile-logistikfastigheter
Personlig service
Väl underhållna och säkra lokaler
Fokus på hållbar utveckling
Kontakta oss
Fyll i formuläret för att få mer information, boka en visning eller om du har en generell förfrågan.
Eller ring gärna Viktor Noring på +46 (0) 76 600 30 59





























