Verkstadslokal optimal för tung fordonsservice med stor uppställningsyta på strategiskt läge i Arlöv
2 376 kvm
Nu ges möjlighet att etablera verksamhet i en väl anpassad och funktionell lokal som lämpar sig särskilt för lastbilsverkstad, skadevagnsverkstad eller annan service för tunga fordon. Lokalen är utformad för att skapa effektiva arbetsflöden och möta höga krav på logistik och tillgänglighet.
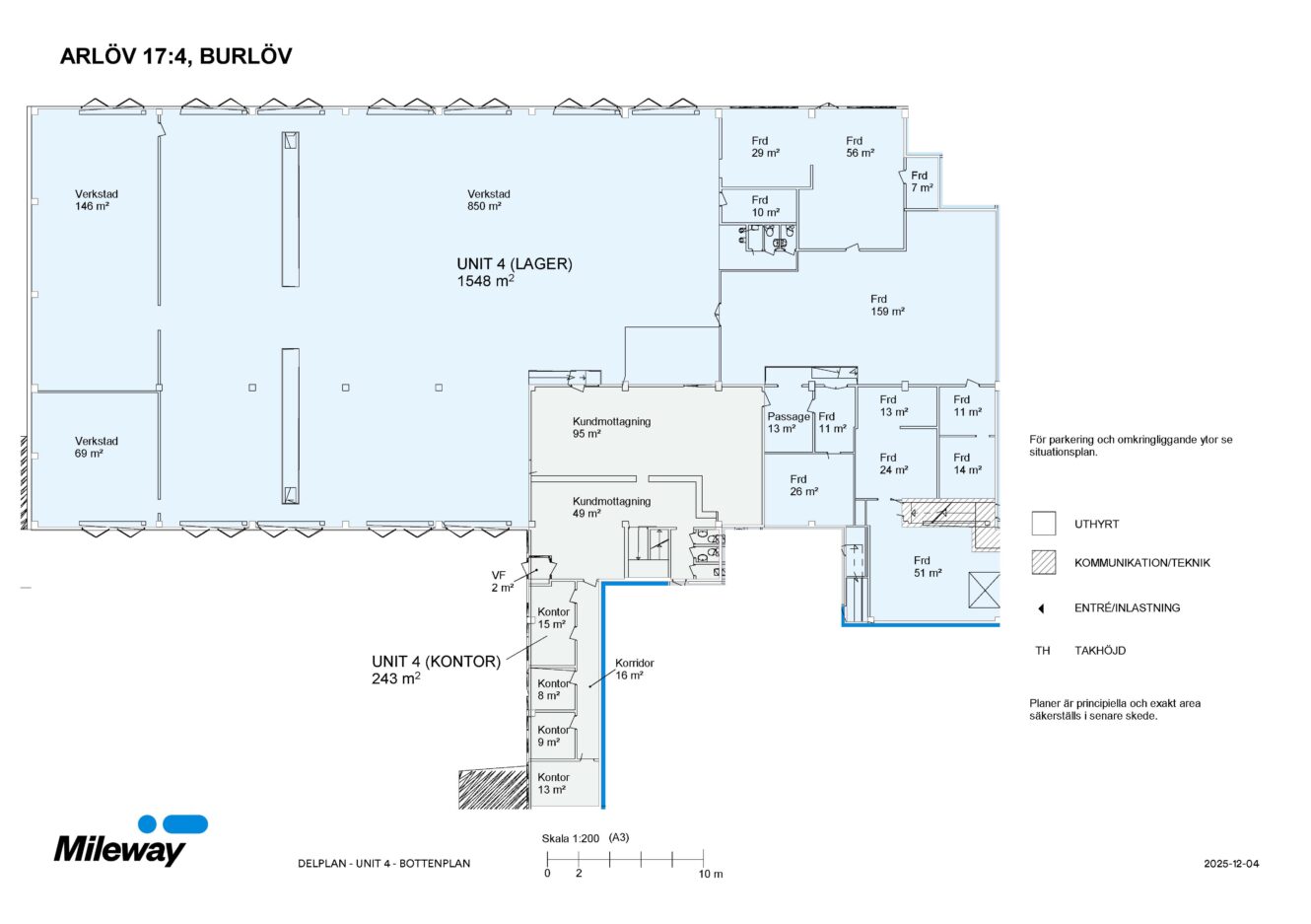
Verkstadsdelen erbjuder generösa ytor med 12 markportar, vilket ger stor flexibilitet för in- och utpassage av fordon samt smidiga rörelser inom verksamheten. En takhöjd om cirka 6-8 meter i kombination med befintlig travers med en lyftkapacitet om upp till 3 ton skapar goda förutsättningar för arbete med tunga och volymkrävande fordon.
Till lokalen hör även en inhägnad uppställningsyta om cirka 7 362 kvm som ger gott om plats för lastbilar, skadade fordon och personalparkering.
Kontors- och personalutrymmena är fördelade över tre plan och omfattar totalt cirka 828 kvm. Här finns ändamålsenliga ytor för administration, personal och möten samt faciliteter såsom pentry, WC och omklädningsrum, vilket skapar en funktionell helhetslösning för både drift och personal.
5 km norr om centrala Malmö
Takhöjd 6-8 meter
12 markportar
Lokal optimal för lastbilsverkstad
Stor uppställningsyta
Direkt anslutning till E6/E20 och Inre Ringvägen
Läge/närmaste ort
Malmö
Fastigheten är belägen i Arlöv, cirka 5 km norr om centrala Malmö med direkt anslutning till E6/E20 och nära anslutning till Inre Ringvägen, E22 samt Västkustvägen. Området präglas av etablerade verkstäder, fordonsservice och lättindustri och erbjuder dessutom ett enklare serviceutbud med butiker, lunchrestauranger och kaféer. Det finns goda kollektivtrafikförbindelser med buss till centrala Malmö.
- E 6;E 20;E 22 (13)0.4 km
- Malmö Airport13 km
- Trelleborgs Hamn14 km
- Persborg2 km
- Benkammen0.1 km
- Ekohallen0.9 km
- Burger King0.3 km
- e-center0.9 km
Avstånden är beräknade fågelvägen från postkodens mittpunkt.
Översikt
| Lediga enheter | Kvm |
| Unit 4 - lager och kontor | Kvm:2 376 |
Varför Mileway?
Dedikerad Asset Manager
Flexibla hyresvillkor
Ledande i Sverige & Europa inom last mile-logistikfastigheter
Personlig service
Väl underhållna och säkra lokaler
Fokus på hållbar utveckling
Kontakta oss
Fyll i formuläret för att få mer information, boka en visning eller om du har en generell förfrågan.
Eller ring gärna Viktor Noring på +46 (0) 76 600 30 59





















