Rymliga lagerytor med 3 000 kvm mark och flexibel uppdelning i expansiva Bulltofta
1 613-3 613 kvm
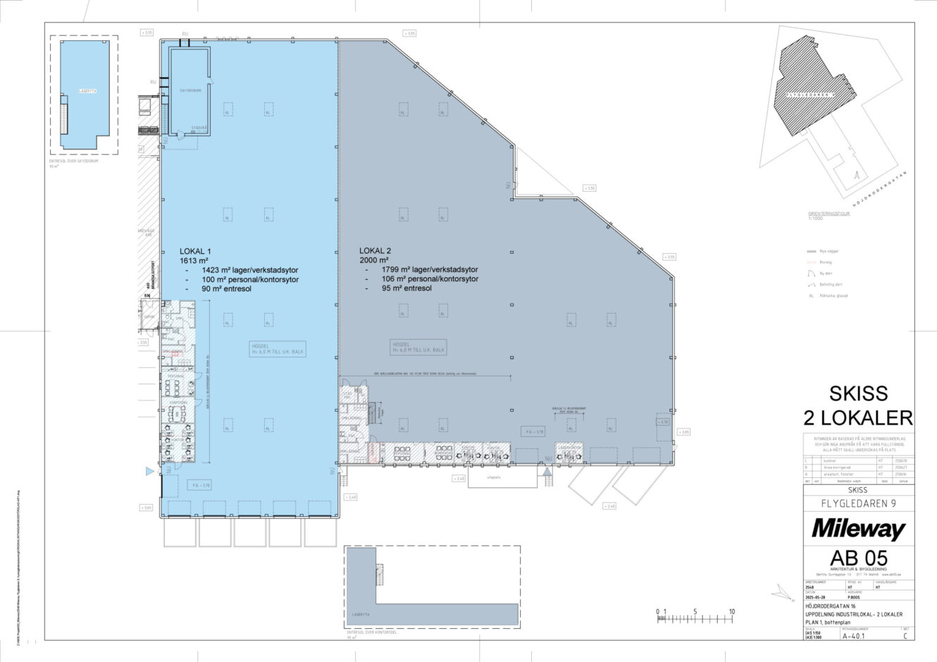
Nu finns möjligheten att hyra flexibla och välutrustade lagerytor inklusive kontor om totalt 3 613 kvm i populära Bulltofta industriområde. Lokalerna är i gott skick och kan hyras som en sammanhängande enhet eller delas i två separata lokaler om 1 613 och 2 000 kvm – perfekt för verksamheter med olika behov.
Ytorna är i gott skick, belägna på markplan och erbjuder generösa lagerytor med varierande takhöjd om 6-7.3 meter och smidig lastning via totalt sju lasthus och en markport. Det finns möjlighet att installera två extra lastportar vid behov. Tillhörande kontorsytor är i modernt skick och erbjuder faciliteter i form av kök/pentry, omklädningsrum och WC. Byggnaden ligger med fri access mot Höjdrodergatan och tillhörande uppställningsyta om cirka 3 000 kvm rymmer god plats åt lastbilar och personbilsparkering.
5 km öster om centrala Malmö
7 lasthus + 1 markport (möjlighet för 2 extra portar)
Höglager upp till 7.3 meter
Uppställningsyta 3 000 kvm
Direkt anslutning till Inre Ringvägen med anslutning från E6/E20, E22 och E65
Läge/närmaste ort
Malmö
Bulltofta industriområde ligger 5 km nordost om centrala Malmö och är ett av de största och mest expansiva företagsområden i Malmö präglat av lätt industri, lager- och logistikverksamheter samt viss handel. Området ligger strategiskt placerat i direkt anslutning till Inre Ringvägen som leder vidare till E6/E20, E22 och E65 på ett par minuter. Enklare serviceutbud av lunchrestauranger och viss handel finns att tillgå i närområdet. Det finns goda kollektivtrafikförbindelser med buss till centrala Malmö.
- E 6.010.5 km
- Malmö Airport21 km
- Trelleborgs Hamn27 km
- Östervärn2 km
- Flygledaren0.1 km
- Coop0.9 km
- Helsingburger0.2 km
- Katrinelunds köpcentrum2 km
Avstånden är beräknade fågelvägen från postkodens mittpunkt.
Översikt
| Lediga enheter | Kvm |
| Lokal 1 - Lager/verkstad och kontor | Kvm:1 613 |
| Lokal 2 - Lager/verkstad och kontor | Kvm:2 000 |
| Total enhet | Kvm:3 613 |
Varför Mileway?
Dedikerad Asset Manager
Flexibla hyresvillkor
Ledande i Sverige & Europa inom last mile-logistikfastigheter
Personlig service
Väl underhållna och säkra lokaler
Fokus på hållbar utveckling
Kontakta oss
Fyll i formuläret för att få mer information, boka en visning eller om du har en generell förfrågan.
Eller ring gärna Hannah Reeder på +46 (0) 70 816 10 98




















