Modernt kontorshotell med lediga rum och gemensamma faciliteter samt ledig kontors- och lagerlokal
14-519 kvm
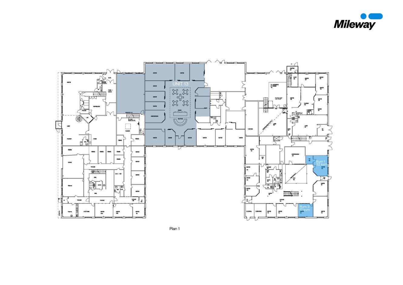
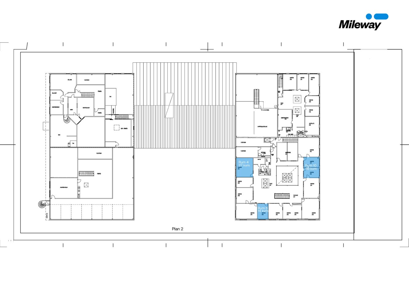
Kontorsfastighet med modernt kontorshotell fördelat på två våningsplan. Här erbjuds fina gemensamma faciliteter och kontorsrum om 14 – 46 kvm som kan kombineras i flexibla lösningar för att få tillgång till den storlek som verksamheten behöver.
Här finns även en kontorslokal inklusive lageryta om totalt 519 kvm som blir ledig i april 2026. Lokalen är belägen på markplan, är utrustad med LED-belysning och inrymmer kontorsyta om 419 kvm samt lageryta om 100 kvm. Här erbjuds fräscha kontorsytor i modernt skick med bekväma faciliteter såsom kök/pentry, loungeyta, omklädningsrum och WC. Lagret ligger i direkt anslutning till kontoret och smidig in- och utlastning sker via en markport. Takhöjden uppgår till ca 4 meter och det finns ett mindre entresolplan.
Byggnaden ligger med fri access mot Linjegatan och det finns parkering mot avgift i anslutning till lokalerna.
1 kilometer söder om centrala Halmstad
Fri parkering
Generösa gemensamma faciliteter och ytor
Kombilokal med 1 markport
I nära anslutning till E6/E20 och riksväg 15, 25 och 26
Läge/närmaste ort
Halmstad
Industriområdet Larsfrid ligger endast 3 kilometer söder om centrala Halmstad och utgör ett optimalt logistikläge i direkt anslutning till E6/E20, nära Halmstad hamn samt vid knutpunkten för riksväg 15, 25 och 26. Högskoleområdet erbjuder ett brett serviceutbud av butiker och restauranger. Det finns goda kollektivtrafikförbindelser med buss till centrala Halmstad.
- E 6;E 20 (44)1 km
- Helsingør Havn45 km
- Halmstad C0.8 km
- Larsfridsvägen0.2 km
- Maxi ICA Stormarknad Högskolan0.2 km
- Pastariket0.1 km
- Hallarna1 km
Avstånden är beräknade fågelvägen från postkodens mittpunkt.
Översikt
| Lediga enheter | Kvm | Tillgänglig |
| Rum 1 - kontor | Kvm:32 | Tillgänglig:2026-02-28 |
| Rum 3 - kontor | Kvm:17 | Tillgänglig:Omgående |
| Rum 4 - kontor | Kvm:27 | Tillgänglig:Omgående |
| Rum 5 - kontor | Kvm:14 | Tillgänglig:Omgående |
| Rum 10 - kontor | Kvm:46 | Tillgänglig:2026-10-01 |
| Unit 13 - kontor och lager | Kvm:519 | Tillgänglig:2026-04-01 |
Varför Mileway?
Dedikerad Asset Manager
Flexibla hyresvillkor
Ledande i Sverige & Europa inom last mile-logistikfastigheter
Personlig service
Väl underhållna och säkra lokaler
Fokus på hållbar utveckling
Kontakta oss
Fyll i formuläret för att få mer information, boka en visning eller om du har en generell förfrågan.
Eller ring gärna Markus Christensson på +46 (0) 70-838 97 89























