Kombinerad lager- och kontorslokal med tillgång till lasthus på bästa läge intill Laholmsvägen, med direkt anslutning till motorväg
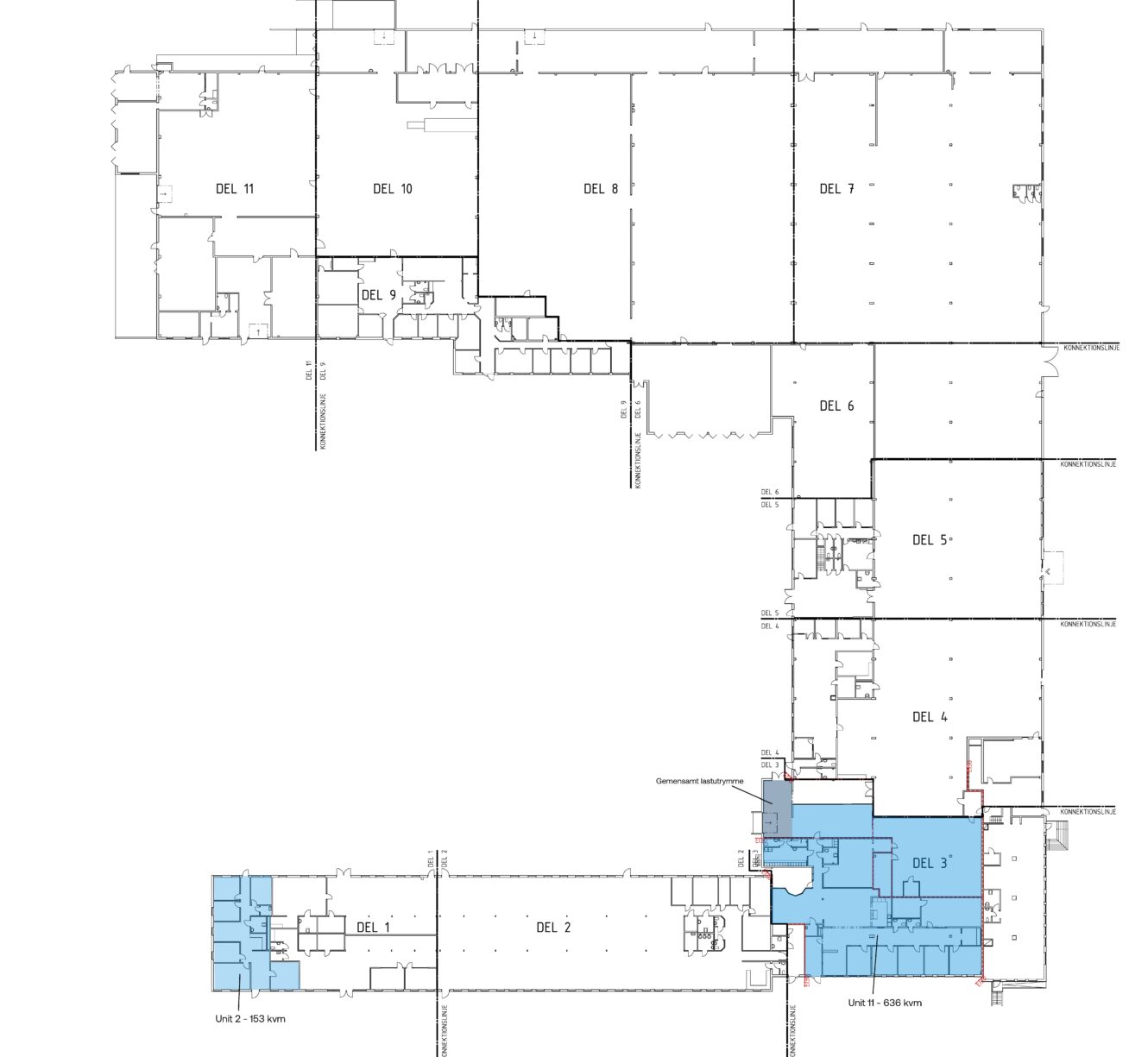
153-636 kvm
Stor industrifastighet på bästa läge i Halmstad med en ledig kombilokal om 636 kvm på markplan. Lagret om 213 kvm erbjuder smidigt in- och utlastning via ett gemensamt lasthus och fyra meter i takhöjd. Kontorsdelen om 423 kvm inrymmer separata kontorsrum i olika storlekar, mötesrum, matsal med kök och gott om yta för sittplatser samt WC.
Här finns även en kontorslokal om 153 kvm, idealisk för det mindre företaget eller en växande start-up. Lokalen har en funktionell planlösning med flera kontorsrum i varierande storlekar, ett mötesrum, kök/pentry och WC. Med två separata entréer finns även möjlighet att använda en del av lokalen för enklare lagring eller förvaring, vilket skapar extra flexibilitet för verksamheter med behov av kombinerade ytor. Lokalen kan anpassas i samråd med hyresgästen för att skapa en optimal arbetsmiljö utifrån specifika behov.
Fastigheten har fri access direkt från Laholmsvägen och ligger bara ett stenkast från motorvägen, vilket ger utmärkt tillgänglighet. Parkeringsplatser finns i direkt anslutning till lokalerna.
3 kilometer söder om centrala Halmstad
Bra exponering av skyltläge
Tillgång till lasthus
Goda parkeringsmöjligheter
I direkt anslutning till E6/E20 samt riksväg 15/25/26
Läge/närmaste ort
Halmstad
Industriområdet Larsfrid ligger endast 3 kilometer söder om centrala Halmstad och utgör ett optimalt logistikläge i direkt anslutning till E6/E20, nära Halmstad hamn samt vid knutpunkten för riksväg 15, 25 och 26. Högskoleområdet erbjuder ett brett serviceutbud av butiker och restauranger. Det finns goda kollektivtrafikförbindelser med buss till centrala Halmstad.
- E 6;E 20 (43)0.6 km
- Helsingør Havn45 km
- Halmstad C1 km
- Grönevångsvägen0.04 km
- Lidl0.1 km
- Östergök0.01 km
- Hallarna0.8 km
Avstånden är beräknade fågelvägen från postkodens mittpunkt.
Översikt
| Lediga enheter | Kvm |
| Unit 11 - kontor och lager | Kvm:636 |
| Unit 2 - kontor/lager | Kvm:153 |
Varför Mileway?
Dedikerad Asset Manager
Flexibla hyresvillkor
Ledande i Sverige & Europa inom last mile-logistikfastigheter
Personlig service
Väl underhållna och säkra lokaler
Fokus på hållbar utveckling
Kontakta oss
Fyll i formuläret för att få mer information, boka en visning eller om du har en generell förfrågan.
Eller ring gärna Markus Christensson på +46 (0) 70-838 97 89




























