Komplett lagerfastighet med utmärkt läge i Sätra – perfekt för logistik och produktionsverksamhet
5 290 kvm
Nu finns möjlighet att hyra en komplett lagerfastighet om totalt 5 290 kvm, med öppna lager- och produktionsytor om 4 330 kvm samt tillhörande kontor om 960 kvm. Lagret har en takhöjd på 5–6 meter och är utrustat med två lasthus samt lastkajer med totalt sju portar, vilket skapar smidiga och effektiva flöden för in- och utlastning. Det finns även möjlighet att anpassa lokalen ytterligare med en markport vid behov. Med en elkapacitet på cirka 800 ampere är fastigheten dessutom mycket väl lämpad för produktionsverksamhet.
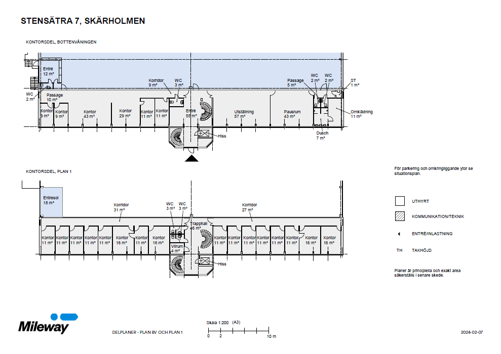
Kontorsytorna är fördelade på tre våningsplan och nås via både trappa och hiss. De är funktionella och flexibla, med mötesrum, pentry, matsal, omklädningsrum, duschar och WC – en komplett lösning för både administration och personal.
Utanför byggnaden finns en inhägnad gårdsyta om cirka 4 000–5 000 kvm, idealisk som lastzon, uppställningsyta eller parkering.
Denna fastighet förenar generösa ytor, hög teknisk standard och ett strategiskt läge – en optimal lösning för verksamheter med höga krav på logistik, produktion och tillgänglighet.
10 km söder om centrala Stockholm
2 lastkajer med 7 portar + 2 lasthus
Takhöjd 6 meter
Tillhörande kontor med faciliteter
Direkt anslutning till E4/E20
Läge/närmaste ort
Skärholmen
Sätra Industriområde ligger 10 kilometer söder om centrala Stockholm på ett attraktivt läge i direkt anslutning till E4/E20. Området präglas av lättindustri, lager, verkstäder och handel och det erbjuds ett brett serviceutbud av bland annat butiker och lunchrestauranger i Sätra centrum samt Skärholmen centrum. Det finns goda kollektivtrafikförbindelser med tunnelbana till Stockholm med omnejd.
- E 4;E 20 (152)0.9 km
- Stockholm-Bromma flygplats8 km
- Bergs oljehamn14 km
- Sätra0.4 km
- Stensätravägen0.3 km
- Ica Sätra0.5 km
- Sätragrillen0.5 km
- Sätra centrum0.5 km
Avstånden är beräknade fågelvägen från postkodens mittpunkt.
Översikt
| Lediga enheter | Kvm |
| Hel fastighet | Kvm:5 290 |
Varför Mileway?
Dedikerad Asset Manager
Flexibla hyresvillkor
Ledande i Sverige & Europa inom last mile-logistikfastigheter
Personlig service
Väl underhållna och säkra lokaler
Fokus på hållbar utveckling
Kontakta oss
Fyll i formuläret för att få mer information, boka en visning eller om du har en generell förfrågan.
Eller ring gärna Besart Ferizi på +46 (0) 76 238 38 92


























