Kontorslokal i gott skick med tillhörande lager/verkstad finns att hyra i Elisedal
370 kvm
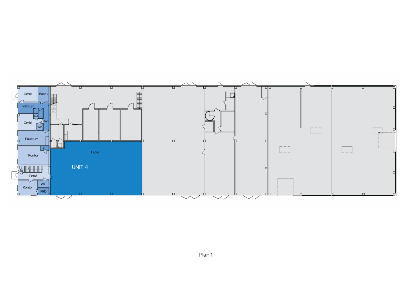
Här finns nu möjlighet att hyra en flexibel lokal om totalt 370 kvm, fördelad på 180 kvm lageryta i markplan och 190 kvm kontorsyta på två plan. Det finns goda möjligheter att anpassa och fräscha upp lokalen i samråd med ny hyresgäst. Lagret har en generös takhöjd på sex meter samt egen markport som möjliggör smidig lastning och lossning. Kontorsdelen erbjuder en funktionell arbetsmiljö med tillgång till flera faciliteter såsom matsal/pentry, omklädningsrum, bastu och WC.
Fastigheten är belägen inom ett inhägnat område med stora uppställningsytor och goda parkeringsmöjligheter.
10 km sydost om centrala Malmö
Lager med egen markport
Takhöjd 6 meter
Direkt anslutning till E6, E65 och Inre Ringvägen
Läge/närmaste ort
Malmö
Elisedal är ett industriområde 10 kilometer sydost om centrala Malmö. Det ligger strategiskt placerat direkt intill de viktiga transportlänkarna E6, E65 och Inre Ringvägen med snabb access in och ut ur Malmö. Området präglas delvis av verkstäder men även av blandad företagsverksamhet inom lättindustri och handel. Jägerso Center finns inom nära räckhåll med stort serviceutbud av butiker och restauranger. Det finns goda kollektivtrafikförbindelser med buss till centrala Malmö.
- E 6;E 20;E 22 (14)0.3 km
- Malmö Airport12 km
- Trelleborgs Hamn14 km
- Oxie2 km
- Galoppgatan0.2 km
- Coop Forum0.7 km
- Burger King0.7 km
- Jägersro Center0.7 km
Avstånden är beräknade fågelvägen från postkodens mittpunkt.
Översikt
| Lediga enheter | Kvm |
| Unit 4 - lager och kontor | Kvm:370 |
Varför Mileway?
Dedikerad Asset Manager
Flexibla hyresvillkor
Ledande i Sverige & Europa inom last mile-logistikfastigheter
Personlig service
Väl underhållna och säkra lokaler
Fokus på hållbar utveckling

















