Anpassningsbara industrilokaler med högspänning, lastportar, lastkajer och tillhörande markyta om 10 000 kvm
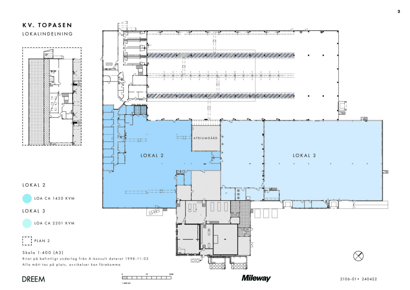
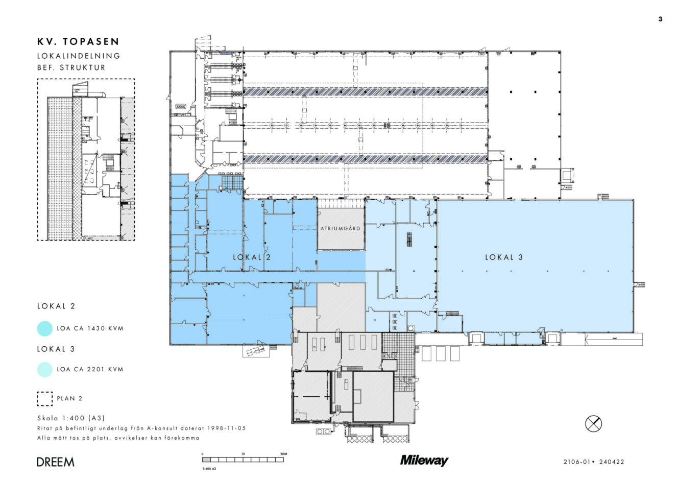
1 430-3 631 kvm
Lager- och produktionsutrymmet har en generös takhöjd på 5,5 – 7 meter, 5 lastportar varav 2 lasthus och 3 lastkajer. Lokalen erbjuder högspänning på 5 700 ampere och är utrustad med traverser med en maxvikt på 1 ton. För säkerhet och hållbarhet är ett sprinklersystem och brandlarm installerat, tillsammans med energieffektiv LED-belysning och miljöcertifieringen EU GreenBuilding. Lokalen är dessutom godkänd för livsmedelsproduktion. Den tillhörande kontorsdelen om ca 600 kvm är belägen på plan 1-2 och är fullt utrustad med omklädningsrum, pausytor, kök/pentry och WC.
Utanför byggnaden finns en stor uppställningsyta om 10 000 kvm som kan hårdgöras och hägnas in vid behov, samt gott om parkeringsplatser, cirka 75 stycken. Det går även att stycka av marken i mindre delar från ca 1 000 kvm och det går att hyra endast mark för den som är i behov av utomhuslagring men inte lokal.
Tack vare det flexibla tillträdet kan inflyttning ske omgående, och det finns även möjligheter för ytterligare anpassning, såsom att riva väggar för att skapa en mer öppen lageryta.
5 km norr om centrala Helsingborg
2 lasthus och 3 lastkajer
Markyta om 10 000 kvm
LED- belysning
EU GreenBuilding
Nära anslutning till E4 och E6
Läge/närmaste ort
Helsingborg
Väla Södra är ett attraktivt industriområde med industri-, lager- och kontorsfastigheter beläget 5 km norr om centrala Helsingborg. Området ligger i direkt anslutning till de viktiga transportlänkarna E4 och E6. Väla köpcentrum erbjuder ett brett serviceutbud med butiker och restauranger. Det finns goda kollektivtrafikförbindelser med buss till centrala Helsingborg.
- E 4.230.3 km
- Københavns Lufthavn33 km
- Helsingør Havn6 km
- Maria1 km
- Helsingborg Funkisvägen0.2 km
- Willys0.7 km
- Pastamannen0.4 km
- Väla Centrum0.8 km
Avstånden är beräknade fågelvägen från postkodens mittpunkt.
Översikt
| Lediga enheter | Kvm |
| Lokal 2 - lager och kontor | Kvm:1 430 |
| Lokal 3 - lager och kontor | Kvm:2 201 |
| Mark | Kvm:1 000 - 10 000 |
Varför Mileway?
Dedikerad Asset Manager
Flexibla hyresvillkor
Ledande i Sverige & Europa inom last mile-logistikfastigheter
Personlig service
Väl underhållna och säkra lokaler
Fokus på hållbar utveckling
Kontakta oss
Fyll i formuläret för att få mer information, boka en visning eller om du har en generell förfrågan.
Eller ring gärna Paramita Celvinsson på +46 (0) 70 724 12 23
















